KKYビルの貸事務所・賃貸オフィス情報
KKYビルの貸事務所・賃貸オフィス情報
KKYビル
- 物件番号
- 175-00184
- 所在地
- 東京都渋谷区千駄ヶ谷2-8-8
- 竣工
- 1990年4月
- 規模
- 地上4階
- エレベーター
- 個別空調
- 駐車場
- 新耐震基準
KKYビルの空室フロアリスト
| 階数 | 面積 | 賃料+共益費 | 保証金 | 入居時期 | 更新料 | 償却費 | 礼金 | 検討 | 平面図 | 詳細 |
|---|---|---|---|---|---|---|---|---|---|---|
| 1-2F | 92.71坪 |
応相談応相談
|
応相談
|
2026年5月上旬 | なし | なし | なし |
KKYビルの物件情報
KKYビル(渋谷区千駄ヶ谷)は北参道駅徒歩6分、国立競技場駅徒歩10分、千駄ヶ谷駅徒歩10分の賃貸オフィスです。
KKYビルのアクセス
KKYビルの募集終了区画
| 階数 | 面積 | 賃料+共益費 | 保証金 | 入居時期 | 更新料 | 償却費 | 礼金 | 平面図 | 詳細 |
|---|---|---|---|---|---|---|---|---|---|
| 1 | 42.39坪 | − | − | 募集終了 | − | − | − | ||
| 2 | 50.32坪 | − | − | 募集終了 | − | − | − | ||
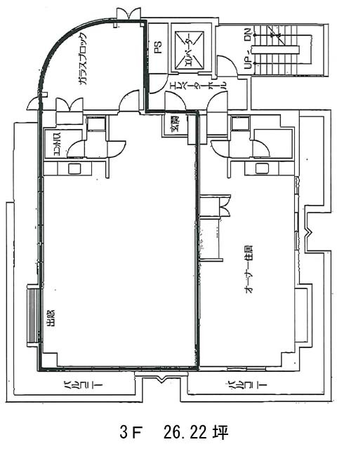
| 3 | 26.22坪 | − | − | 募集終了 | − | − | − |


