フローリッシュ千駄ヶ谷の貸事務所・賃貸オフィス情報
フローリッシュ千駄ヶ谷の貸事務所・賃貸オフィス情報
フローリッシュ千駄ヶ谷
- 物件番号
- 175-00388
- 所在地
- 東京都渋谷区千駄ヶ谷2-7-4
- 竣工
- 1991年7月
- 規模
- 地上5階/地下1階
- エレベーター
- 個別空調
- 駐車場
- 新耐震基準
フローリッシュ千駄ヶ谷の空室フロアリスト
| 階数 | 面積 | 賃料+共益費 | 保証金 | 入居時期 | 更新料 | 償却費 | 礼金 | 検討 | 平面図 | 詳細 |
|---|---|---|---|---|---|---|---|---|---|---|
| 3 | 20.30坪 |
363,000円17,882円/坪
|
120万円
|
即 | 新1ケ月 | なし | 1ケ月 |
フローリッシュ千駄ヶ谷の物件情報
フローリッシュ千駄ヶ谷(渋谷区千駄ヶ谷)は北参道駅徒歩6分、原宿駅徒歩10分、国立競技場駅徒歩11分の賃貸オフィスです。
フローリッシュ千駄ヶ谷のアクセス
フローリッシュ千駄ヶ谷の募集終了区画
| 階数 | 面積 | 賃料+共益費 | 保証金 | 入居時期 | 更新料 | 償却費 | 礼金 | 平面図 | 詳細 |
|---|---|---|---|---|---|---|---|---|---|
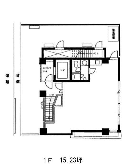
| 1 | 15.23坪 | − | − | 募集終了 | − | − | − | ||
| 2 | 20.30坪 | − | − | 募集終了 | − | − | − |


