ジュニアー千駄ヶ谷ビルの貸事務所・賃貸オフィス情報
ジュニアー千駄ヶ谷ビルの貸事務所・賃貸オフィス情報
ジュニアー千駄ヶ谷ビル
- 物件番号
- 175-00452
- 所在地
- 東京都渋谷区千駄ヶ谷1-5-8
- 竣工
- 1997年7月
- 規模
- 地上3階/地下1階
- エレベーター
- 個別空調
- 駐車場
- 新耐震基準
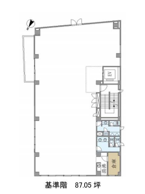
ジュニアー千駄ヶ谷ビルの空室フロアリスト
| 階数 | 面積 | 賃料+共益費 | 保証金 | 入居時期 | 更新料 | 償却費 | 礼金 | 検討 | 平面図 | 詳細 |
|---|---|---|---|---|---|---|---|---|---|---|
| 3 | 87.05坪 |
2,106,610円24,200円/坪
|
1532万円
|
2026年7月中旬 | 新1ケ月 | なし | なし |
ジュニアー千駄ヶ谷ビルの物件情報
ジュニアー千駄ヶ谷ビル(渋谷区千駄ヶ谷)は北参道駅徒歩6分、国立競技場駅徒歩6分、千駄ヶ谷駅徒歩6分の賃貸オフィスです。
ジュニアー千駄ヶ谷ビルのアクセス
ジュニアー千駄ヶ谷ビルの条件に近い物件
ジュニアー千駄ヶ谷ビルの募集終了区画
| 階数 | 面積 | 賃料+共益費 | 保証金 | 入居時期 | 更新料 | 償却費 | 礼金 | 平面図 | 詳細 |
|---|---|---|---|---|---|---|---|---|---|
| 2 | 87.05坪 | − | − | 募集終了 | − | − | − |


