現在、空室がございません。
博鵬ビルの貸事務所・賃貸オフィス情報
博鵬ビルの貸事務所・賃貸オフィス情報
博鵬ビル
- 個別空調
- 駐車場
- 旧耐震基準
博鵬ビルの空室フロアリスト
現在、空室がございません。
博鵬ビルの物件情報
博鵬ビル(渋谷区代々木)は南新宿駅徒歩5分、代々木駅徒歩6分、参宮橋駅徒歩8分の賃貸オフィスです。
博鵬ビルのアクセス
博鵬ビルの募集終了区画
| 階数 | 面積 | 賃料+共益費 | 保証金 | 入居時期 | 更新料 | 償却費 | 礼金 | 平面図 | 詳細 |
|---|---|---|---|---|---|---|---|---|---|
| 2 | 23.36坪 | − | − | 募集終了 | − | − | − | ||
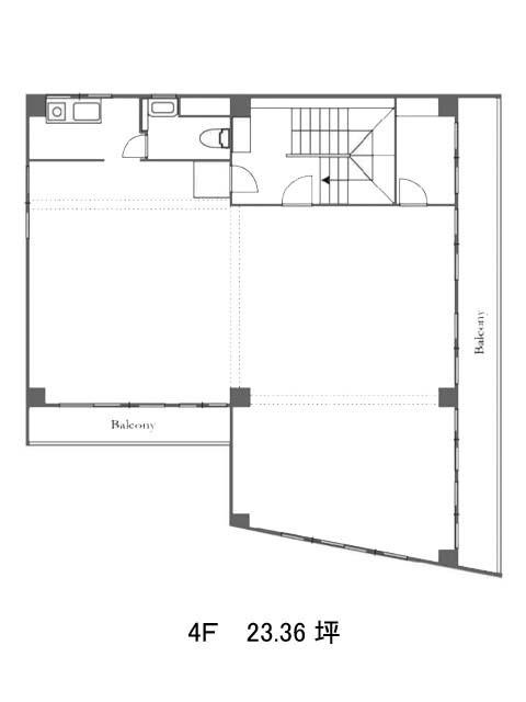
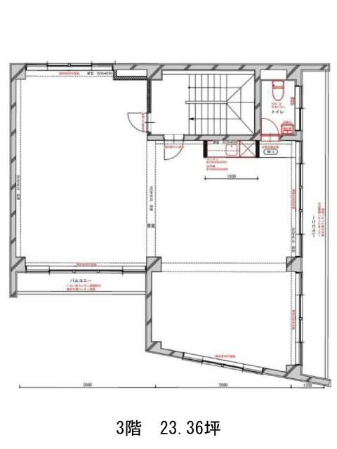
| 3 | 23.36坪 | − | − | 募集終了 | − | − | − | ||
| 4 | 23.36坪 | − | − | 募集終了 | − | − | − |


