新中央ビルの貸事務所・賃貸オフィス情報
新中央ビルの貸事務所・賃貸オフィス情報
新中央ビル
- エレベーター
- 個別空調
- 新耐震基準
新中央ビルの空室フロアリスト
| 階数 | 面積 | 賃料+共益費 | 保証金 | 入居時期 | 更新料 | 償却費 | 礼金 | 検討 | 平面図 | 詳細 |
|---|---|---|---|---|---|---|---|---|---|---|
| 4 | 48.53坪 |
応相談応相談
|
応相談
|
即 | なし | なし | なし |
新中央ビルの物件情報
新中央ビル(渋谷区代々木)は新宿駅徒歩1分、南新宿駅徒歩8分、都庁前駅徒歩8分の賃貸オフィスです。
新中央ビルのアクセス
新中央ビルの募集終了区画
| 階数 | 面積 | 賃料+共益費 | 保証金 | 入居時期 | 更新料 | 償却費 | 礼金 | 平面図 | 詳細 |
|---|---|---|---|---|---|---|---|---|---|
| 1 | 58.06坪 | − | − | 募集終了 | − | − | − | ||
| 2 | 71.29坪 | − | − | 募集終了 | − | − | − | ||
| 3 | 71.29坪 | − | − | 募集終了 | − | − | − | ||
| 4 | 71.29坪 | − | − | 募集終了 | − | − | − | ||
| 5 | 71.28坪 | − | − | 募集終了 | − | − | − | ||
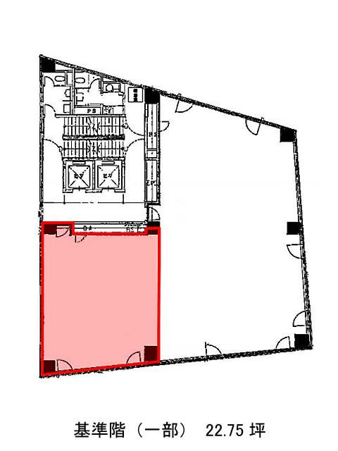
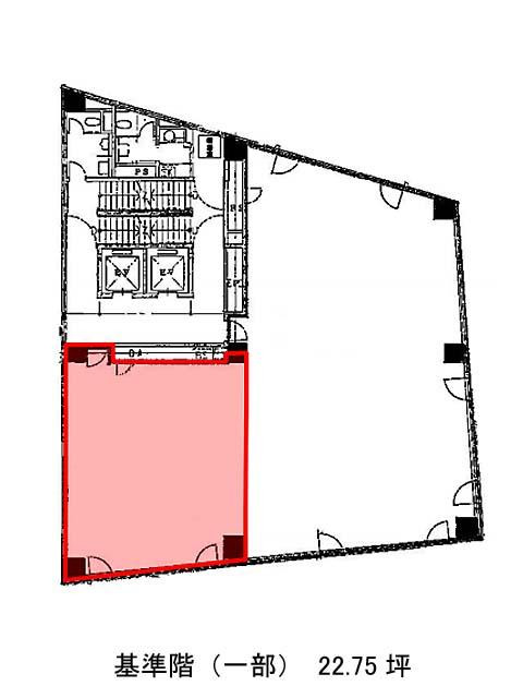
| 6 | 22.75坪 | − | − | 募集終了 | − | − | − | ||
| 6 | 48.53坪 | − | − | 募集終了 | − | − | − | ||
| 7 | 71.28坪 | − | − | 募集終了 | − | − | − | ||
| 8 | 48.53坪 | − | − | 募集終了 | − | − | − | ||
| 8 | 22.75坪 | − | − | 募集終了 | − | − | − | ||
| 9 | 22.76坪 | − | − | 募集終了 | − | − | − | ||
| 9 | 48.53坪 | − | − | 募集終了 | − | − | − |


