新宿スリーケービルの貸事務所・賃貸オフィス情報
新宿スリーケービルの貸事務所・賃貸オフィス情報
新宿スリーケービル
- 物件番号
- 177-00014
- 所在地
- 東京都渋谷区代々木3-24-3
- 竣工
- 1989年1月
- 規模
- 地上9階/地下1階
- エレベーター
- 個別空調
- 新耐震基準
新宿スリーケービルの空室フロアリスト
| 階数 | 面積 | 賃料+共益費 | 保証金 | 入居時期 | 更新料 | 償却費 | 礼金 | 検討 | 平面図 | 詳細 |
|---|---|---|---|---|---|---|---|---|---|---|
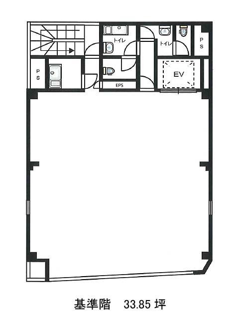
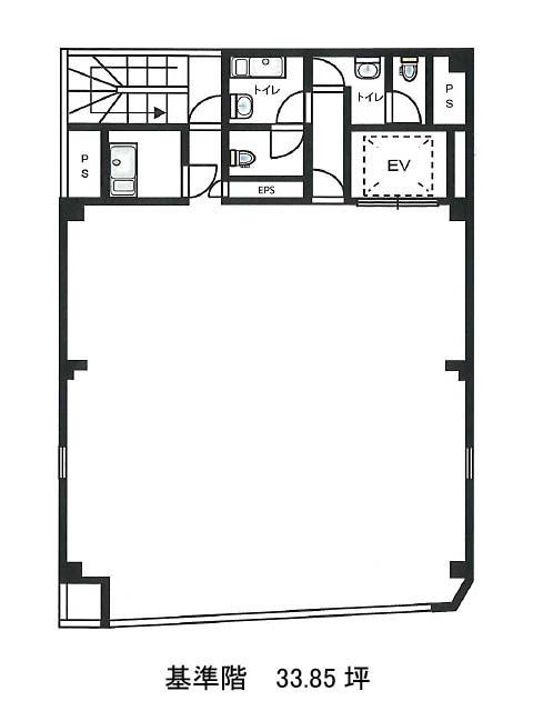
| 7 | 33.85坪 |
応相談応相談
|
360万円
|
即 | 新1ケ月 | なし | 1ケ月 |
新宿スリーケービルの物件情報
新宿スリーケービル(渋谷区代々木)は新宿駅徒歩6分、初台駅徒歩9分、都庁前駅徒歩9分の賃貸オフィスです。
新宿スリーケービルのアクセス
新宿スリーケービルの募集終了区画
| 階数 | 面積 | 賃料+共益費 | 保証金 | 入居時期 | 更新料 | 償却費 | 礼金 | 平面図 | 詳細 |
|---|---|---|---|---|---|---|---|---|---|
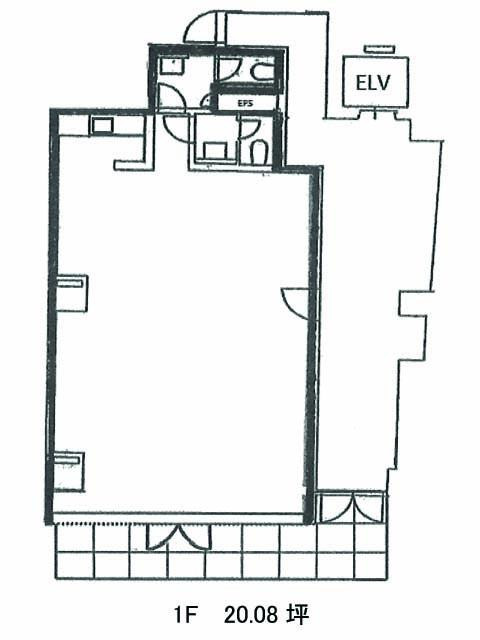
| 1 | 20.08坪 | − | − | 募集終了 | − | − | − | ||
| 3 | 33.85坪 | − | − | 募集終了 | − | − | − | ||
| 4 | 33.85坪 | − | − | 募集終了 | − | − | − | ||
| 5 | 33.85坪 | − | − | 募集終了 | − | − | − | ||
| 6 | 33.85坪 | − | − | 募集終了 | − | − | − | ||
| 9 | 33.85坪 | − | − | 募集終了 | − | − | − |


