新宿カメヤビルの貸事務所・賃貸オフィス情報
新宿カメヤビルの貸事務所・賃貸オフィス情報
新宿カメヤビル
- エレベーター
- 個別空調
- 新耐震基準
新宿カメヤビルの空室フロアリスト
| 階数 | 面積 | 賃料+共益費 | 保証金 | 入居時期 | 更新料 | 償却費 | 礼金 | 検討 | 平面図 | 詳細 |
|---|---|---|---|---|---|---|---|---|---|---|
| 1 | 42.17坪 |
990,000円23,477円/坪
|
630万円
|
即 | 新1ケ月 | 1ケ月 | なし | |||
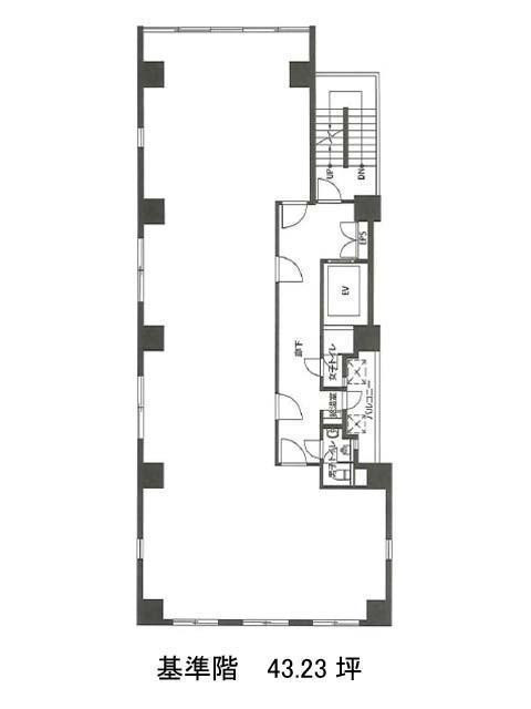
| 5 | 43.23坪 |
760,846円17,600円/坪
|
337万円
|
即 | 新1ケ月 | 1ケ月 | なし | |||
| 8 | 43.23坪 |
760,848円17,600円/坪
|
337万円
|
即 | 新1ケ月 | 1ケ月 | なし |
新宿カメヤビルの物件情報
新宿カメヤビル(渋谷区代々木)は初台駅徒歩8分、新宿駅徒歩8分、都庁前駅徒歩9分の賃貸オフィスです。
新宿カメヤビルのアクセス
新宿カメヤビルの募集終了区画
| 階数 | 面積 | 賃料+共益費 | 保証金 | 入居時期 | 更新料 | 償却費 | 礼金 | 平面図 | 詳細 |
|---|---|---|---|---|---|---|---|---|---|
| 2 | 21.53坪 | − | − | 募集終了 | − | − | − | ||
| 2 | 21.70坪 | − | − | 募集終了 | − | − | − | ||
| 3 | 43.23坪 | − | − | 募集終了 | − | − | − | ||
| 4 | 43.23坪 | − | − | 募集終了 | − | − | − | ||
| 6 | 41.50坪 | − | − | 募集終了 | − | − | − | ||
| 7 | 43.23坪 | − | − | 募集終了 | − | − | − | ||
| 9 | 43.23坪 | − | − | 募集終了 | − | − | − |


