ベルックス新宿ビルⅡの貸事務所・賃貸オフィス情報
ベルックス新宿ビルⅡの貸事務所・賃貸オフィス情報
ベルックス新宿ビルⅡ
- 物件番号
- 187-00003
- 所在地
- 東京都新宿区愛住町23-2
- 竣工
- 1992年2月
- 規模
- 地上11階
- エレベーター
- 個別空調
- 駐車場
- 新耐震基準
ベルックス新宿ビルⅡの空室フロアリスト
| 階数 | 面積 | 賃料+共益費 | 保証金 | 入居時期 | 更新料 | 償却費 | 礼金 | 検討 | 平面図 | 詳細 |
|---|---|---|---|---|---|---|---|---|---|---|
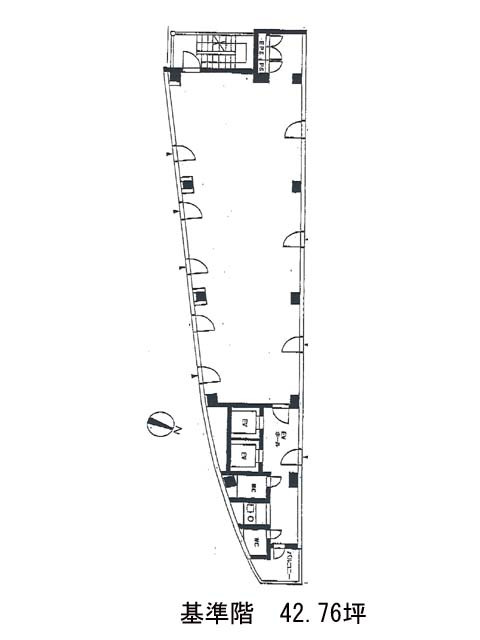
| 8 | 42.76坪 |
611,468円14,300円/坪
|
427万円
|
2026年3月上旬 | 新1ケ月 | 2ケ月 | なし |
ベルックス新宿ビルⅡの物件情報
ベルックス新宿ビルⅡ(新宿区愛住町)は曙橋駅徒歩3分、四谷三丁目駅徒歩7分、新宿御苑前駅徒歩13分の賃貸オフィスです。
ベルックス新宿ビルⅡのアクセス
ベルックス新宿ビルⅡの募集終了区画
| 階数 | 面積 | 賃料+共益費 | 保証金 | 入居時期 | 更新料 | 償却費 | 礼金 | 平面図 | 詳細 |
|---|---|---|---|---|---|---|---|---|---|
| 2 | 37.88坪 | − | − | 募集終了 | − | − | − | ||
| 3 | 42.76坪 | − | − | 募集終了 | − | − | − | ||
| 4 | 42.76坪 | − | − | 募集終了 | − | − | − | ||
| 5 | 42.76坪 | − | − | 募集終了 | − | − | − | ||
| 6 | 42.76坪 | − | − | 募集終了 | − | − | − | ||
| 7 | 42.76坪 | − | − | 募集終了 | − | − | − | ||
| 9 | 42.76坪 | − | − | 募集終了 | − | − | − | ||
| 9 | 42.76坪 | − | − | 募集終了 | − | − | − | ||
| 10 | 42.76坪 | − | − | 募集終了 | − | − | − | ||
| 11 | 42.76坪 | − | − | 募集終了 | − | − | − |


