ホンダビルの貸事務所・賃貸オフィス情報
ホンダビルの貸事務所・賃貸オフィス情報
ホンダビル
- エレベーター
- 個別空調
- 新耐震基準
ホンダビルの空室フロアリスト
| 階数 | 面積 | 賃料+共益費 | 保証金 | 入居時期 | 更新料 | 償却費 | 礼金 | 検討 | 平面図 | 詳細 |
|---|---|---|---|---|---|---|---|---|---|---|
| 4 | 44.68坪 |
応相談応相談
|
応相談
|
2026年6月下旬 | 新1ケ月 | 2ケ月 | なし |
ホンダビルの物件情報
ホンダビル(新宿区高田馬場)は高田馬場駅徒歩3分、西早稲田駅徒歩9分、学習院下駅徒歩12分の賃貸オフィスです。
ホンダビルのアクセス
ホンダビルの募集終了区画
| 階数 | 面積 | 賃料+共益費 | 保証金 | 入居時期 | 更新料 | 償却費 | 礼金 | 平面図 | 詳細 |
|---|---|---|---|---|---|---|---|---|---|
| 1 | 57.49坪 | − | − | 募集終了 | − | − | − | ||
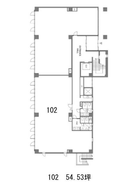
| 1 | 54.53坪 | − | − | 募集終了 | − | − | − | ||
| 2 | 44.88坪 | − | − | 募集終了 | − | − | − | ||
| 2 | 39.95坪 | − | − | 募集終了 | − | − | − | ||
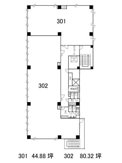
| 3 | 80.52坪 | − | − | 募集終了 | − | − | − | ||
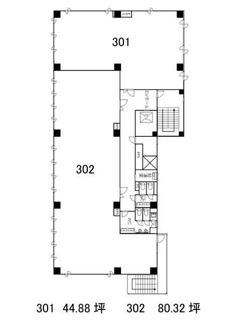
| 3 | 44.88坪 | − | − | 募集終了 | − | − | − | ||
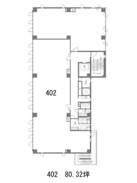
| 4 | 80.32坪 | − | − | 募集終了 | − | − | − |


