0120-16-2331

【受付時間】平日 AM9:00〜PM7:00

メールでお問合せ
現在、空室がございません。

VICTORIA CENTER/ヴィクトリアセンターの貸事務所・賃貸オフィス情報

VICTORIA CENTER/ヴィクトリアセンターの貸事務所・賃貸オフィス情報

VICTORIA CENTER/ヴィクトリアセンター

物件番号
208​-​00139
所在地
東京都新宿区四谷4-6-10
最寄駅
曙橋駅 11分
竣工
1989年8月
規模
地上10階/地下1階
  • エレベーター
  • 個別空調
  • 新耐震基準

VICTORIA CENTER/ヴィクトリアセンターの空室フロアリスト

現在、空室がございません。

VICTORIA CENTER/ヴィクトリアセンターの物件情報

VICTORIA CENTER/ヴィクトリアセンター(新宿区四谷)は四谷三丁目駅徒歩5分、新宿御苑前駅徒歩7分、曙橋駅徒歩11分の賃貸オフィスです。

VICTORIA CENTER/ヴィクトリアセンターのアクセス

VICTORIA CENTER/ヴィクトリアセンターの募集終了区画

階数 面積 賃料+共益費 保証金 入居時期 更新料 償却費 礼金 平面図 詳細
2 36.67坪 募集終了
3 40.71坪 募集終了
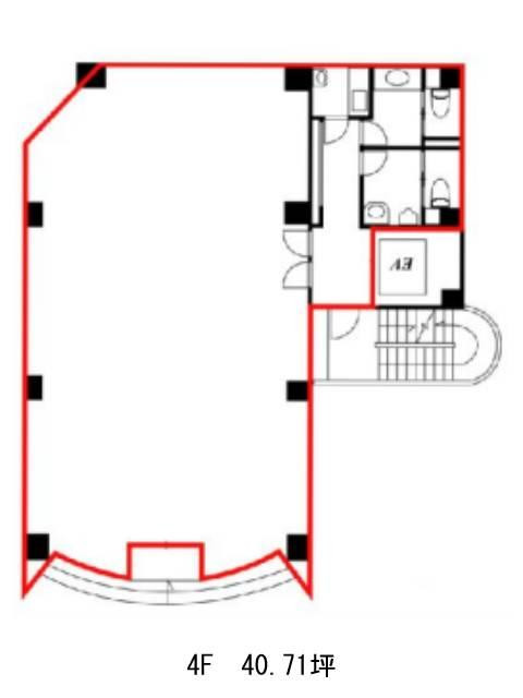
4 40.71坪 募集終了
5 40.71坪 募集終了
6 40.71坪 募集終了
7 40.71坪 募集終了
8 40.71坪 募集終了
9 40.71坪 募集終了

貸事務所・賃貸オフィスを最寄駅から探す

貸事務所・賃貸オフィスを最寄駅の沿線から探す

お問合せ このビルについて問い合わせる