0120-16-2331

【受付時間】平日 AM9:00〜PM7:00

メールでお問合せ
現在、空室がございません。

八重洲新宿御苑ビルの貸事務所・賃貸オフィス情報

八重洲新宿御苑ビルの貸事務所・賃貸オフィス情報

八重洲新宿御苑ビル

物件番号
208​-​00181
所在地
東京都新宿区四谷4-27-1
最寄駅
曙橋駅 11分
竣工
1992年12月
規模
地上6階
  • エレベーター
  • 個別空調
  • 駐車場
  • 新耐震基準

八重洲新宿御苑ビルの空室フロアリスト

現在、空室がございません。

八重洲新宿御苑ビルの物件情報

八重洲新宿御苑ビル(新宿区四谷)は新宿御苑前駅徒歩6分、四谷三丁目駅徒歩8分、曙橋駅徒歩11分の賃貸オフィスです。

八重洲新宿御苑ビルのアクセス

八重洲新宿御苑ビルの募集終了区画

階数 面積 賃料+共益費 保証金 入居時期 更新料 償却費 礼金 平面図 詳細
2 32.70坪 募集終了
3 32.76坪 募集終了
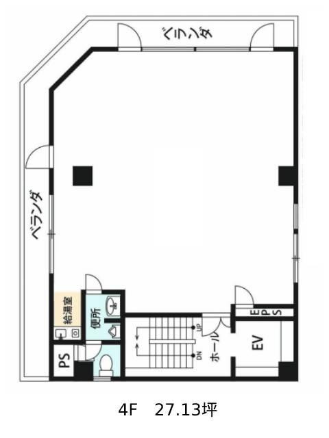
4 27.13坪 募集終了
5 17.98坪 募集終了

貸事務所・賃貸オフィスを最寄駅から探す

貸事務所・賃貸オフィスを最寄駅の沿線から探す

お問合せ このビルについて問い合わせる