四谷4丁目32番4号ビルの貸事務所・賃貸オフィス情報
四谷4丁目32番4号ビルの貸事務所・賃貸オフィス情報
四谷4丁目32番4号ビル
- エレベーター
- 個別空調
- 新耐震基準
四谷4丁目32番4号ビルの空室フロアリスト
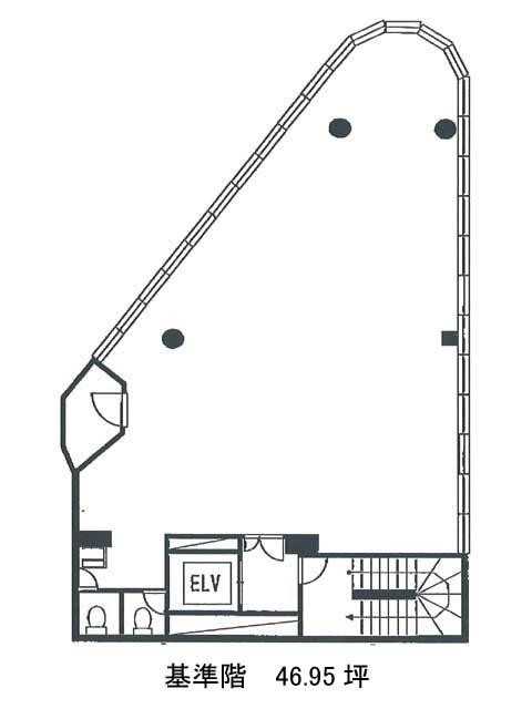
| 階数 | 面積 | 賃料+共益費 | 保証金 | 入居時期 | 更新料 | 償却費 | 礼金 | 検討 | 平面図 | 詳細 |
|---|---|---|---|---|---|---|---|---|---|---|
| 2 | 46.95坪 |
645,562円13,750円/坪
|
246万円
|
即 | 新1ケ月 | なし | なし |
四谷4丁目32番4号ビルの物件情報
四谷4丁目32番4号ビル(新宿区四谷)は新宿御苑前駅徒歩7分、四谷三丁目駅徒歩9分、曙橋駅徒歩10分の賃貸オフィスです。
四谷4丁目32番4号ビルのアクセス
四谷4丁目32番4号ビルの条件に近い物件
四谷4丁目32番4号ビルの募集終了区画
| 階数 | 面積 | 賃料+共益費 | 保証金 | 入居時期 | 更新料 | 償却費 | 礼金 | 平面図 | 詳細 |
|---|---|---|---|---|---|---|---|---|---|
| 1 | 22.90坪 | − | − | 募集終了 | − | − | − | ||
| 3 | 46.95坪 | − | − | 募集終了 | − | − | − | ||
| 4 | 46.95坪 | − | − | 募集終了 | − | − | − | ||
| 5 | 46.95坪 | − | − | 募集終了 | − | − | − | ||
| 6 | 34.14坪 | − | − | 募集終了 | − | − | − |


