新宿御苑PALTビルの貸事務所・賃貸オフィス情報
新宿御苑PALTビルの貸事務所・賃貸オフィス情報
新宿御苑PALTビル
- 物件番号
- 208-00088
- 所在地
- 東京都新宿区四谷4-28-8
- 竣工
- 1986年9月
- 規模
- 地上10階/地下1階
- エレベーター
- 個別空調
- 新耐震基準
新宿御苑PALTビルの空室フロアリスト
| 階数 | 面積 | 賃料+共益費 | 保証金 | 入居時期 | 更新料 | 償却費 | 礼金 | 検討 | 平面図 | 詳細 |
|---|---|---|---|---|---|---|---|---|---|---|
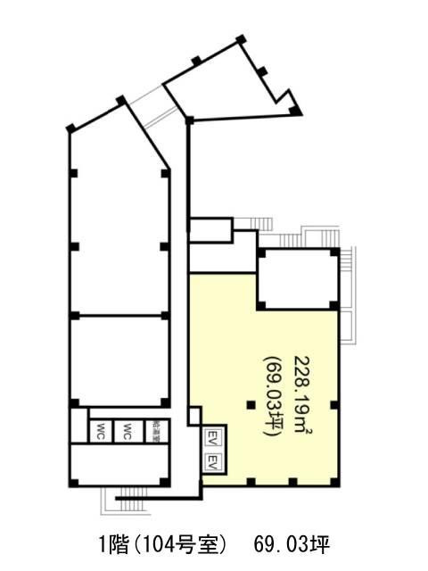
| 1 | 69.03坪 |
1,442,727円20,900円/坪
|
1104万円
|
即 | なし | なし | 1ケ月 |
新宿御苑PALTビルの物件情報
新宿御苑PALTビル(新宿区四谷)は新宿御苑前駅徒歩5分、四谷三丁目駅徒歩7分、新宿三丁目駅徒歩12分の賃貸オフィスです。
新宿御苑PALTビルのアクセス
新宿御苑PALTビルの募集終了区画
| 階数 | 面積 | 賃料+共益費 | 保証金 | 入居時期 | 更新料 | 償却費 | 礼金 | 平面図 | 詳細 |
|---|---|---|---|---|---|---|---|---|---|
| LB | 102.52坪 | − | − | 募集終了 | − | − | − | ||
| LB | 32.52坪 | − | − | 募集終了 | − | − | − | ||
| 1 | 48.80坪 | − | − | 募集終了 | − | − | − | ||
| 1 | 18.99坪 | − | − | 募集終了 | − | − | − | ||
| 1 | 41.20坪 | − | − | 募集終了 | − | − | − | ||
| 2 | 212.22坪 | − | − | 募集終了 | − | − | − | ||
| 3 | 190.85坪 | − | − | 募集終了 | − | − | − | ||
| 4 | 201.40坪 | − | − | 募集終了 | − | − | − | ||
| 5 | 201.40坪 | − | − | 募集終了 | − | − | − | ||
| 6 | 201.40坪 | − | − | 募集終了 | − | − | − | ||
| 7 | 201.40坪 | − | − | 募集終了 | − | − | − | ||
| 8 | 201.40坪 | − | − | 募集終了 | − | − | − | ||
| 9 | 197.72坪 | − | − | 募集終了 | − | − | − | ||
| 10 | 71.35坪 | − | − | 募集終了 | − | − | − |


