新宿小川ビルの貸事務所・賃貸オフィス情報
新宿小川ビルの貸事務所・賃貸オフィス情報
新宿小川ビル
- 物件番号
- 230-00119
- 所在地
- 東京都新宿区新宿1-4-8
- 竣工
- 1989年4月
- 規模
- 地上9階
- エレベーター
- 個別空調
- 新耐震基準
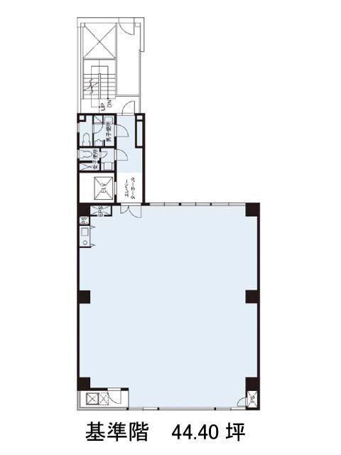
新宿小川ビルの空室フロアリスト
| 階数 | 面積 | 賃料+共益費 | 保証金 | 入居時期 | 更新料 | 償却費 | 礼金 | 検討 | 平面図 | 詳細 |
|---|---|---|---|---|---|---|---|---|---|---|
| 7 | 44.40坪 |
830,280円18,700円/坪
|
599万円
|
2026年7月上旬 | なし | なし | なし |
新宿小川ビルの物件情報
新宿小川ビル(新宿区新宿)は新宿御苑前駅徒歩2分、新宿三丁目駅徒歩7分、四谷三丁目駅徒歩12分の賃貸オフィスです。
新宿小川ビルのアクセス
新宿小川ビルの条件に近い物件
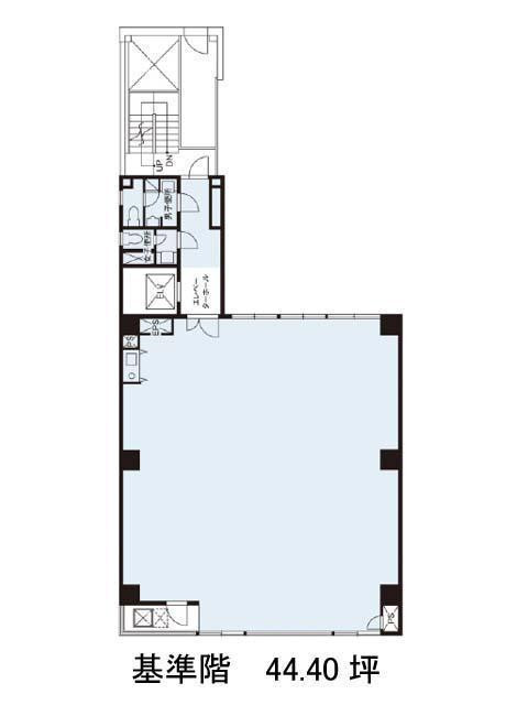
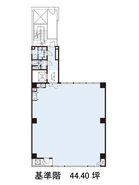
新宿小川ビルの募集終了区画
| 階数 | 面積 | 賃料+共益費 | 保証金 | 入居時期 | 更新料 | 償却費 | 礼金 | 平面図 | 詳細 |
|---|---|---|---|---|---|---|---|---|---|
| 2 | 44.40坪 | − | − | 募集終了 | − | − | − | ||
| 3 | 44.40坪 | − | − | 募集終了 | − | − | − | ||
| 4 | 44.40坪 | − | − | 募集終了 | − | − | − | ||
| 5 | 44.40坪 | − | − | 募集終了 | − | − | − | ||
| 6 | 44.40坪 | − | − | 募集終了 | − | − | − |


