カルム石田ビルの貸事務所・賃貸オフィス情報
カルム石田ビルの貸事務所・賃貸オフィス情報
カルム石田ビル
- エレベーター
- 新耐震基準
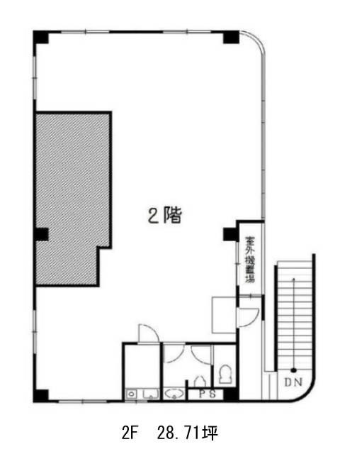
カルム石田ビルの空室フロアリスト
| 階数 | 面積 | 賃料+共益費 | 保証金 | 入居時期 | 更新料 | 償却費 | 礼金 | 検討 | 平面図 | 詳細 |
|---|---|---|---|---|---|---|---|---|---|---|
| 2 | 28.71坪 |
440,018円15,326円/坪
|
240万円
|
相談 | 新1ケ月 | 2ケ月 | 1ケ月 |
カルム石田ビルの物件情報
カルム石田ビル(新宿区新宿)は新宿三丁目駅徒歩4分、東新宿駅徒歩7分、新宿駅徒歩10分の賃貸オフィスです。
カルム石田ビルのアクセス
カルム石田ビルの条件に近い物件
カルム石田ビルの募集終了区画
| 階数 | 面積 | 賃料+共益費 | 保証金 | 入居時期 | 更新料 | 償却費 | 礼金 | 平面図 | 詳細 |
|---|


