現在、空室がございません。
廣田ビルの貸事務所・賃貸オフィス情報
廣田ビルの貸事務所・賃貸オフィス情報
廣田ビル
- エレベーター
- 個別空調
- 駐車場
- 旧耐震基準
廣田ビルの空室フロアリスト
現在、空室がございません。
廣田ビルの物件情報
廣田ビル(新宿区西新宿)は新宿西口駅徒歩6分、大久保駅徒歩7分、新宿駅徒歩8分の賃貸オフィスです。
廣田ビルのアクセス
廣田ビルの募集終了区画
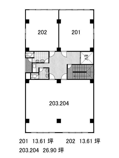
| 階数 | 面積 | 賃料+共益費 | 保証金 | 入居時期 | 更新料 | 償却費 | 礼金 | 平面図 | 詳細 |
|---|---|---|---|---|---|---|---|---|---|
| 2 | 26.90坪 | − | − | 募集終了 | − | − | − |


