新栄ビルの貸事務所・賃貸オフィス情報
新栄ビルの貸事務所・賃貸オフィス情報
新栄ビル
- エレベーター
- 個別空調
- 駐車場
- 新耐震基準
新栄ビルの空室フロアリスト
| 階数 | 面積 | 賃料+共益費 | 保証金 | 入居時期 | 更新料 | 償却費 | 礼金 | 検討 | 平面図 | 詳細 |
|---|---|---|---|---|---|---|---|---|---|---|
| 10 | 35.11坪 |
749,247円21,340円/坪
|
337万円
|
即 | 新1ケ月 | 1ケ月 | 1ケ月 |
新栄ビルの物件情報
新栄ビル(新宿区西新宿)は初台駅徒歩7分、都庁前駅徒歩9分、新宿駅徒歩11分の賃貸オフィスです。
新栄ビルのアクセス
新栄ビルの条件に近い物件
新栄ビルの募集終了区画
| 階数 | 面積 | 賃料+共益費 | 保証金 | 入居時期 | 更新料 | 償却費 | 礼金 | 平面図 | 詳細 |
|---|---|---|---|---|---|---|---|---|---|
| 1 | 61.75坪 | − | − | 募集終了 | − | − | − | ||
| 2 | 39.81坪 | − | − | 募集終了 | − | − | − | ||
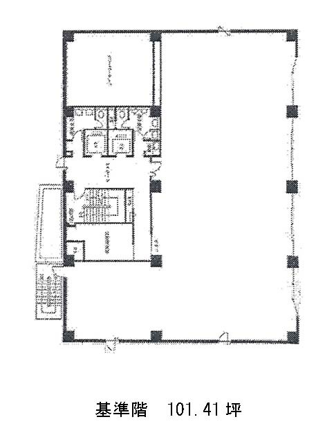
| 2 | 101.41坪 | − | − | 募集終了 | − | − | − | ||
| 4 | 101.41坪 | − | − | 募集終了 | − | − | − | ||
| 5 | 101.41坪 | − | − | 募集終了 | − | − | − | ||
| 8 | 101.41坪 | − | − | 募集終了 | − | − | − | ||
| 9 | 101.41坪 | − | − | 募集終了 | − | − | − |


