現在、空室がございません。
星野第1ビルの貸事務所・賃貸オフィス情報
星野第1ビルの貸事務所・賃貸オフィス情報
星野第1ビル
- 個別空調
- 新耐震基準
星野第1ビルの空室フロアリスト
現在、空室がございません。
星野第1ビルの物件情報
星野第1ビル(新宿区西新宿)は西新宿駅徒歩4分、都庁前駅徒歩8分、大久保駅徒歩9分の賃貸オフィスです。
星野第1ビルのアクセス
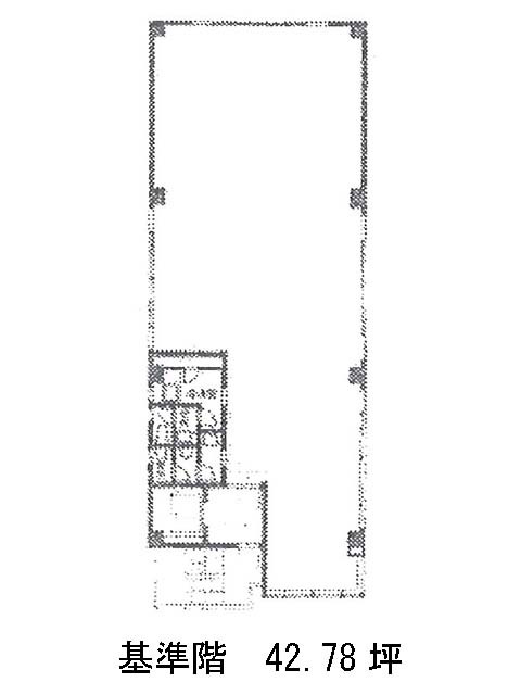
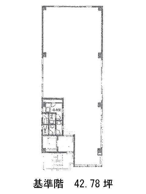
星野第1ビルの募集終了区画
| 階数 | 面積 | 賃料+共益費 | 保証金 | 入居時期 | 更新料 | 償却費 | 礼金 | 平面図 | 詳細 |
|---|---|---|---|---|---|---|---|---|---|
| 1 | 42.78坪 | − | − | 募集終了 | − | − | − | ||
| 2 | 42.78坪 | − | − | 募集終了 | − | − | − | ||
| 3 | 42.78坪 | − | − | 募集終了 | − | − | − |


