宝ビルの貸事務所・賃貸オフィス情報
宝ビルの貸事務所・賃貸オフィス情報
宝ビル
- 個別空調
- 旧耐震基準
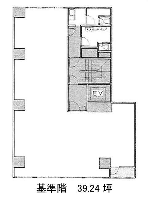
宝ビルの空室フロアリスト
| 階数 | 面積 | 賃料+共益費 | 保証金 | 入居時期 | 更新料 | 償却費 | 礼金 | 検討 | 平面図 | 詳細 |
|---|---|---|---|---|---|---|---|---|---|---|
| 6 | 39.24坪 |
1,105,280円28,167円/坪
|
500万円
|
即 | 新1ケ月 | なし | なし |
宝ビルの物件情報
宝ビル(新宿区西新宿)は新宿西口駅徒歩2分、新宿駅徒歩2分、新宿三丁目駅徒歩6分の賃貸オフィスです。
宝ビルのアクセス
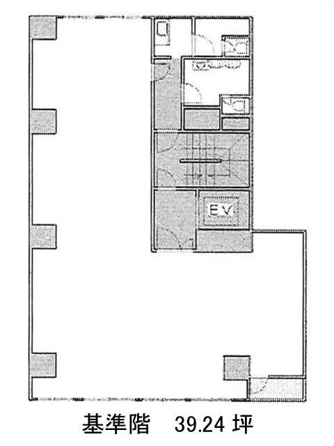
宝ビルの募集終了区画
| 階数 | 面積 | 賃料+共益費 | 保証金 | 入居時期 | 更新料 | 償却費 | 礼金 | 平面図 | 詳細 |
|---|---|---|---|---|---|---|---|---|---|
| 5 | 39.24坪 | − | − | 募集終了 | − | − | − | ||
| 7 | 39.24坪 | − | − | 募集終了 | − | − | − | ||
| 8 | 39.24坪 | − | − | 募集終了 | − | − | − | ||
| 9 | 39.24坪 | − | − | 募集終了 | − | − | − |


