0120-16-2331

【受付時間】平日 AM9:00〜PM7:00

メールでお問合せ
現在、空室がございません。

品川ステーションビル新宿の貸事務所・賃貸オフィス情報

品川ステーションビル新宿の貸事務所・賃貸オフィス情報

品川ステーションビル新宿

物件番号
237​-​00517
所在地
東京都新宿区西新宿1-3-3
最寄駅
新宿駅 2分
竣工
1960年1月
規模
地上8階/地下1階
  • エレベーター
  • 個別空調
  • 旧耐震基準

品川ステーションビル新宿の空室フロアリスト

現在、空室がございません。

品川ステーションビル新宿の物件情報

品川ステーションビル新宿(新宿区西新宿)は新宿西口駅徒歩1分、新宿駅徒歩2分、新宿三丁目駅徒歩5分の賃貸オフィスです。

品川ステーションビル新宿のアクセス

品川ステーションビル新宿の募集終了区画

階数 面積 賃料+共益費 保証金 入居時期 更新料 償却費 礼金 平面図 詳細
4 31.75坪 募集終了
4 17.21坪 募集終了
4 17.18坪 募集終了
4 18.82坪 募集終了
4 17.32坪 募集終了
4 17.18坪 募集終了
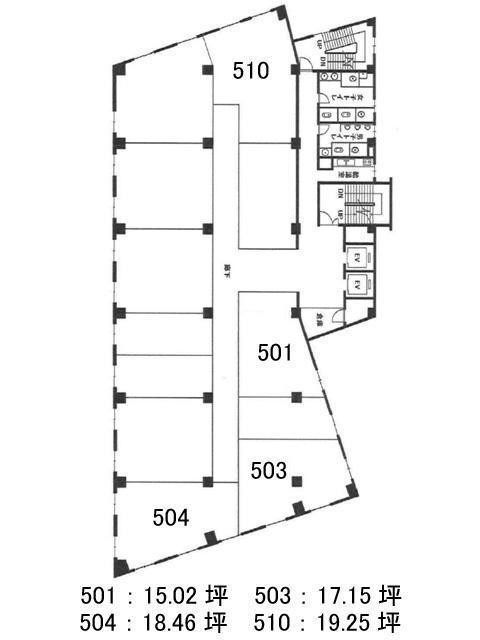
5 15.02坪 募集終了
5 17.15坪 募集終了
5 18.46坪 募集終了
5 19.96坪 募集終了
5 16.96坪 募集終了
5 16.96坪 募集終了
5 18.55坪 募集終了
5 19.25坪 募集終了
6 31.18坪 募集終了

貸事務所・賃貸オフィスを最寄駅から探す

貸事務所・賃貸オフィスを最寄駅の沿線から探す

お問合せ このビルについて問い合わせる