新宿グロウビルの貸事務所・賃貸オフィス情報
新宿グロウビルの貸事務所・賃貸オフィス情報
新宿グロウビル
- 個別空調
- 新耐震基準
新宿グロウビルの空室フロアリスト
| 階数 | 面積 | 賃料+共益費 | 保証金 | 入居時期 | 更新料 | 償却費 | 礼金 | 検討 | 平面図 | 詳細 |
|---|---|---|---|---|---|---|---|---|---|---|
| 3 | 47.04坪 |
803,000円17,070円/坪
|
219万円
|
即 | 新1ケ月 | なし | 1ケ月 |
新宿グロウビルの物件情報
新宿グロウビル(新宿区西新宿)は西新宿駅徒歩3分、都庁前駅徒歩7分、新宿駅徒歩8分の賃貸オフィスです。
新宿グロウビルのアクセス
新宿グロウビルの条件に近い物件
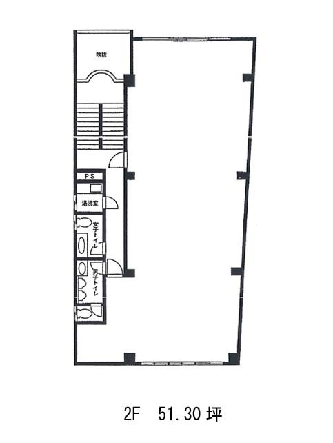
新宿グロウビルの募集終了区画
| 階数 | 面積 | 賃料+共益費 | 保証金 | 入居時期 | 更新料 | 償却費 | 礼金 | 平面図 | 詳細 |
|---|---|---|---|---|---|---|---|---|---|
| 1 | 54.33坪 | − | − | 募集終了 | − | − | − | ||
| 2 | 51.30坪 | − | − | 募集終了 | − | − | − |


