ガーデンクロス新宿御苑の貸事務所・賃貸オフィス情報
ガーデンクロス新宿御苑の貸事務所・賃貸オフィス情報
ガーデンクロス新宿御苑
- 物件番号
- 259-00005
- 所在地
- 東京都新宿区内藤町1
- 竣工
- 1983年4月
- 規模
- 地上10階/地下1階
- エレベーター
- 個別空調
- 駐車場
- 新耐震基準
ガーデンクロス新宿御苑の空室フロアリスト
| 階数 | 面積 | 賃料+共益費 | 保証金 | 入居時期 | 更新料 | 償却費 | 礼金 | 検討 | 平面図 | 詳細 |
|---|---|---|---|---|---|---|---|---|---|---|
| 3 | 32.05坪 |
846,120円26,400円/坪
|
461万円
|
2026年4月上旬 | なし | なし | なし |
ガーデンクロス新宿御苑の物件情報
ガーデンクロス新宿御苑(新宿区内藤町)は四谷三丁目駅徒歩6分、新宿御苑前駅徒歩6分、国立競技場駅徒歩12分の賃貸オフィスです。
ガーデンクロス新宿御苑のアクセス
ガーデンクロス新宿御苑の募集終了区画
| 階数 | 面積 | 賃料+共益費 | 保証金 | 入居時期 | 更新料 | 償却費 | 礼金 | 平面図 | 詳細 |
|---|---|---|---|---|---|---|---|---|---|
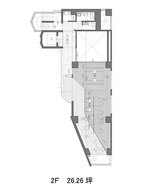
| 2 | 26.26坪 | − | − | 募集終了 | − | − | − | ||
| 4 | 32.05坪 | − | − | 募集終了 | − | − | − | ||
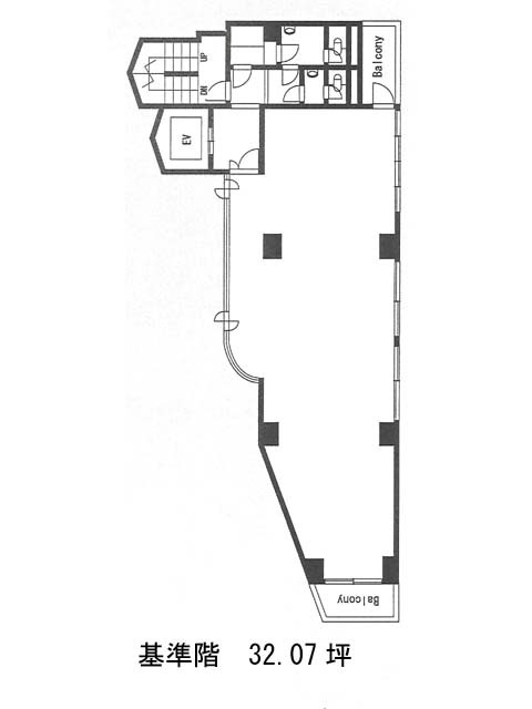
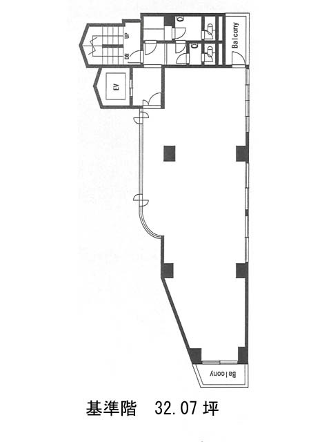
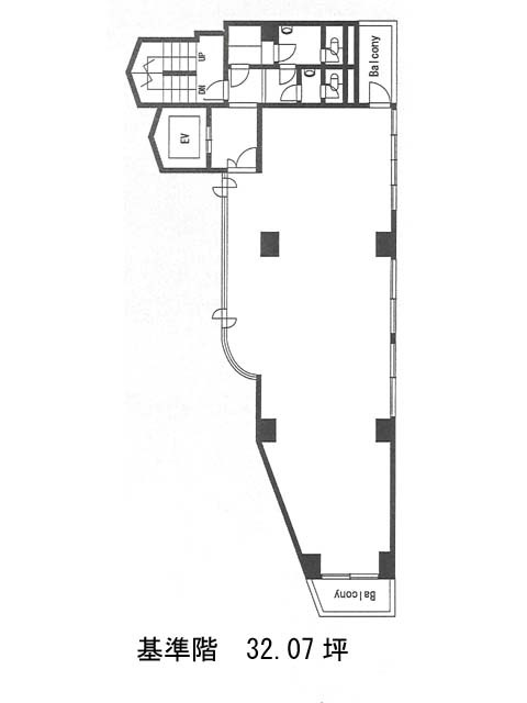
| 5 | 32.07坪 | − | − | 募集終了 | − | − | − | ||
| 6 | 32.07坪 | − | − | 募集終了 | − | − | − | ||
| 7 | 32.07坪 | − | − | 募集終了 | − | − | − | ||
| 8 | 32.05坪 | − | − | 募集終了 | − | − | − | ||
| 9 | 32.05坪 | − | − | 募集終了 | − | − | − | ||
| 10 | 23.40坪 | − | − | 募集終了 | − | − | − |


