0120-16-2331

【受付時間】平日 AM9:00〜PM7:00

メールでお問合せ
現在、空室がございません。

曙ビルの貸事務所・賃貸オフィス情報

曙ビルの貸事務所・賃貸オフィス情報

曙ビル

物件番号
383​-​00153
所在地
東京都千代田区岩本町2-6-12
最寄駅
神田駅 7分
竣工
1975年4月
規模
地上7階/地下1階
  • エレベーター
  • 個別空調
  • 旧耐震基準

曙ビルの空室フロアリスト

現在、空室がございません。

曙ビルの物件情報

曙ビル(千代田区岩本町)は岩本町駅徒歩4分、小伝馬町駅徒歩6分、秋葉原駅徒歩7分の賃貸オフィスです。

曙ビルのアクセス

曙ビルの募集終了区画

階数 面積 賃料+共益費 保証金 入居時期 更新料 償却費 礼金 平面図 詳細
地下1 35.00坪 募集終了
1 23.00坪 募集終了
2 67.00坪 募集終了
2 39.00坪 募集終了
4 67.00坪 募集終了
4 28.00坪 募集終了
4 39.00坪 募集終了
4 16.50坪 募集終了
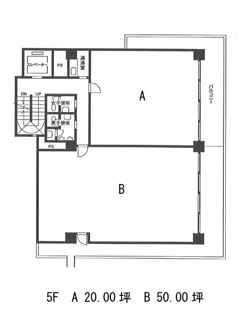
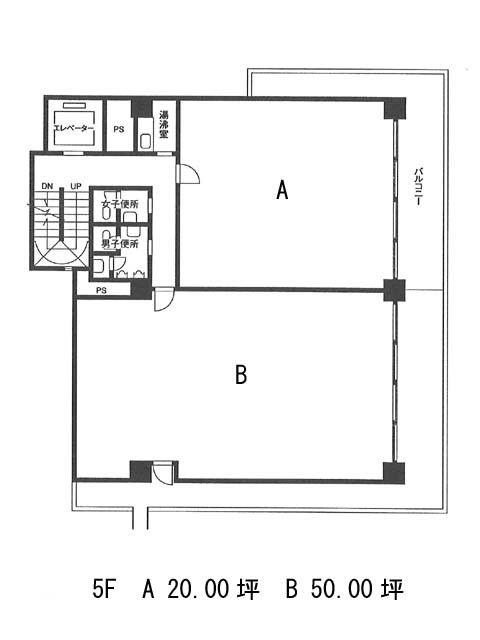
5 50.00坪 募集終了
5 20.00坪 募集終了
6 37.00坪 募集終了

貸事務所・賃貸オフィスを最寄駅から探す

貸事務所・賃貸オフィスを最寄駅の沿線から探す

お問合せ このビルについて問い合わせる