D&F御茶ノ水ビルの貸事務所・賃貸オフィス情報
D&F御茶ノ水ビルの貸事務所・賃貸オフィス情報
D&F御茶ノ水ビル
- 物件番号
- 400-00010
- 所在地
- 東京都千代田区神田小川町1-1-15
- 竣工
- 1992年5月
- 規模
- 地上9階/地下1階
- エレベーター
- 個別空調
- 新耐震基準
D&F御茶ノ水ビルの空室フロアリスト
| 階数 | 面積 | 賃料+共益費 | 保証金 | 入居時期 | 更新料 | 償却費 | 礼金 | 検討 | 平面図 | 詳細 |
|---|---|---|---|---|---|---|---|---|---|---|
| 9 | 33.43坪 |
625,141円18,700円/坪
|
374万円
|
2026年6月 | なし | なし | 2ケ月 |
D&F御茶ノ水ビルの物件情報
D&F御茶ノ水ビル(千代田区神田小川町)は小川町駅徒歩1分、淡路町駅徒歩1分、新御茶ノ水駅徒歩2分の賃貸オフィスです。
D&F御茶ノ水ビルのアクセス
D&F御茶ノ水ビルの募集終了区画
| 階数 | 面積 | 賃料+共益費 | 保証金 | 入居時期 | 更新料 | 償却費 | 礼金 | 平面図 | 詳細 |
|---|---|---|---|---|---|---|---|---|---|
| 地下1 | 29.06坪 | − | − | 募集終了 | − | − | − | ||
| 2 | 28.16坪 | − | − | 募集終了 | − | − | − | ||
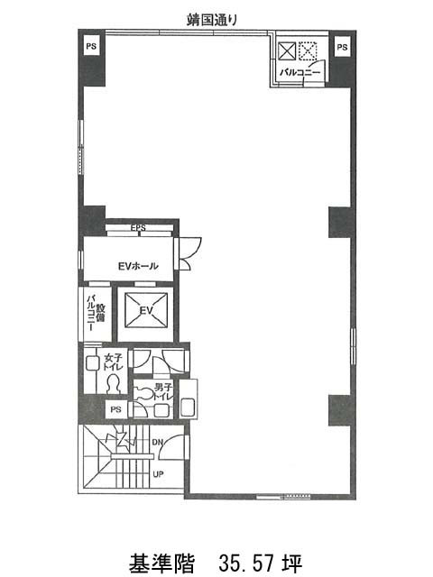
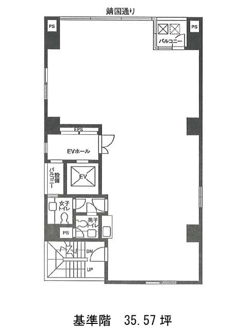
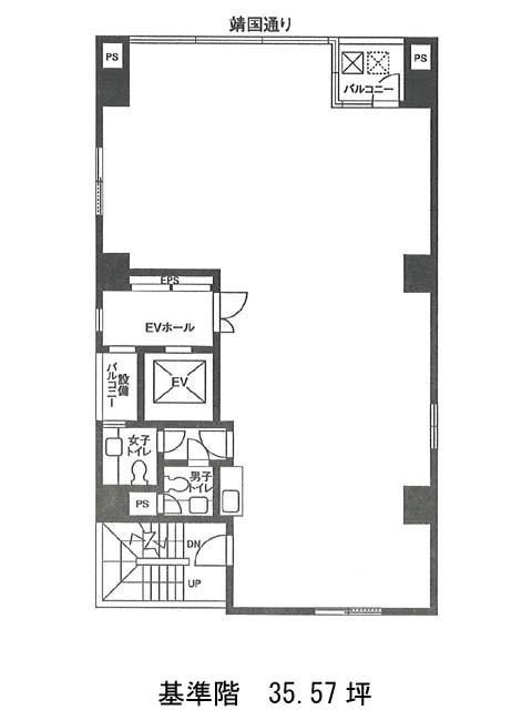
| 3 | 35.57坪 | − | − | 募集終了 | − | − | − | ||
| 4 | 35.57坪 | − | − | 募集終了 | − | − | − | ||
| 5 | 35.57坪 | − | − | 募集終了 | − | − | − | ||
| 6 | 35.57坪 | − | − | 募集終了 | − | − | − | ||
| 8 | 33.57坪 | − | − | 募集終了 | − | − | − |


