弓矢四国ビルの貸事務所・賃貸オフィス情報
弓矢四国ビルの貸事務所・賃貸オフィス情報
弓矢四国ビル
- エレベーター
- 個別空調
- 旧耐震基準
弓矢四国ビルの空室フロアリスト
| 階数 | 面積 | 賃料+共益費 | 保証金 | 入居時期 | 更新料 | 償却費 | 礼金 | 検討 | 平面図 | 詳細 |
|---|---|---|---|---|---|---|---|---|---|---|
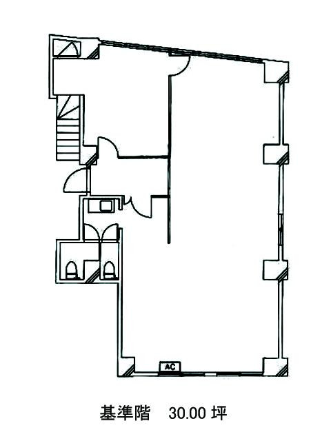
| 4 | 30.00坪 |
462,000円15,400円/坪
|
276万円
|
即 | なし | 1ケ月 | なし |
弓矢四国ビルの物件情報
弓矢四国ビル(千代田区神田須田町)は淡路町駅徒歩2分、小川町駅徒歩2分、神田駅徒歩4分の賃貸オフィスです。
弓矢四国ビルのアクセス
弓矢四国ビルの募集終了区画
| 階数 | 面積 | 賃料+共益費 | 保証金 | 入居時期 | 更新料 | 償却費 | 礼金 | 平面図 | 詳細 |
|---|---|---|---|---|---|---|---|---|---|
| 3 | 30.00坪 | − | − | 募集終了 | − | − | − |


