神田AKビルの貸事務所・賃貸オフィス情報
神田AKビルの貸事務所・賃貸オフィス情報
神田AKビル
- エレベーター
- 個別空調
- 耐震補強済み
神田AKビルの空室フロアリスト
| 階数 | 面積 | 賃料+共益費 | 保証金 | 入居時期 | 更新料 | 償却費 | 礼金 | 検討 | 平面図 | 詳細 |
|---|---|---|---|---|---|---|---|---|---|---|
| 6 | 33.06坪 |
581,856円17,600円/坪
|
343万円
|
2025年12月上旬 | なし | 1ケ月 | なし |
神田AKビルの物件情報
神田AKビル(千代田区神田須田町)は神田駅徒歩1分、小川町駅徒歩5分、淡路町駅徒歩5分の賃貸オフィスです。
神田AKビルのアクセス
神田AKビルの募集終了区画
| 階数 | 面積 | 賃料+共益費 | 保証金 | 入居時期 | 更新料 | 償却費 | 礼金 | 平面図 | 詳細 |
|---|---|---|---|---|---|---|---|---|---|
| 1 | 34.36坪 | − | − | 募集終了 | − | − | − | ||
| 2 | 21.34坪 | − | − | 募集終了 | − | − | − | ||
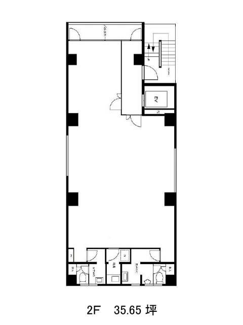
| 2 | 35.65坪 | − | − | 募集終了 | − | − | − | ||
| 3 | 17.36坪 | − | − | 募集終了 | − | − | − | ||
| 3 | 17.90坪 | − | − | 募集終了 | − | − | − | ||
| 4 | 17.36坪 | − | − | 募集終了 | − | − | − | ||
| 4 | 17.90坪 | − | − | 募集終了 | − | − | − | ||
| 5 | 17.36坪 | − | − | 募集終了 | − | − | − | ||
| 5 | 17.90坪 | − | − | 募集終了 | − | − | − | ||
| 7 | 33.06坪 | − | − | 募集終了 | − | − | − | ||
| 8 | 17.90坪 | − | − | 募集終了 | − | − | − | ||
| 9 | 28.00坪 | − | − | 募集終了 | − | − | − |


