日宝神田イーストの貸事務所・賃貸オフィス情報
日宝神田イーストの貸事務所・賃貸オフィス情報
日宝神田イースト
- エレベーター
- 個別空調
- 新耐震基準
日宝神田イーストの空室フロアリスト
| 階数 | 面積 | 賃料+共益費 | 保証金 | 入居時期 | 更新料 | 償却費 | 礼金 | 検討 | 平面図 | 詳細 |
|---|---|---|---|---|---|---|---|---|---|---|
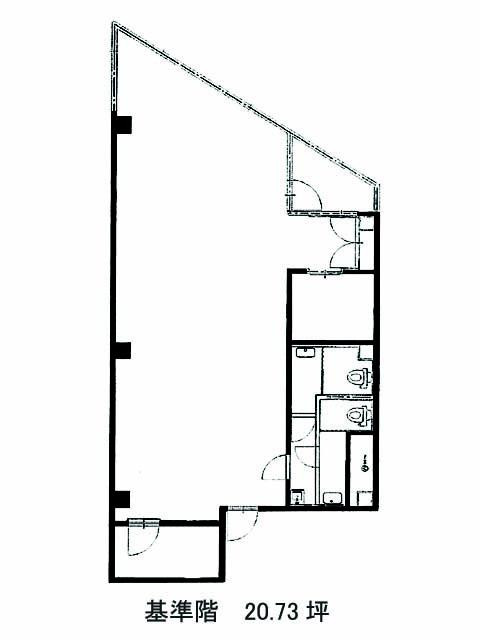
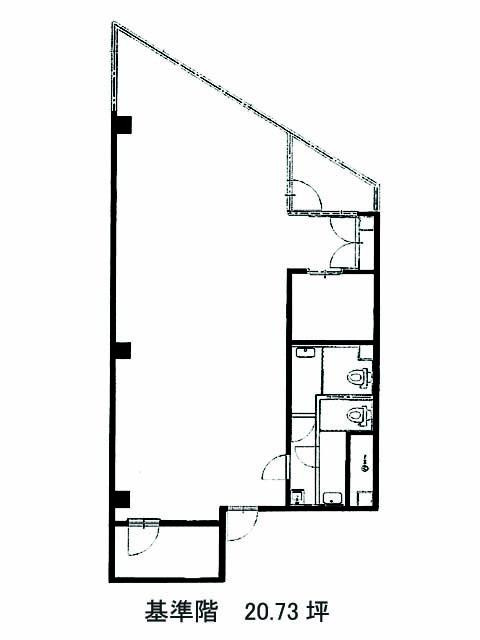
| 4 | 20.73坪 |
410,454円19,800円/坪
|
155万円
|
即 | 新1ケ月 | なし | なし |
日宝神田イーストの物件情報
日宝神田イースト(千代田区鍛冶町)は神田駅徒歩2分、岩本町駅徒歩6分、新日本橋駅徒歩7分の賃貸オフィスです。
日宝神田イーストのアクセス
日宝神田イーストの募集終了区画
| 階数 | 面積 | 賃料+共益費 | 保証金 | 入居時期 | 更新料 | 償却費 | 礼金 | 平面図 | 詳細 |
|---|---|---|---|---|---|---|---|---|---|
| 1 | 41.00坪 | − | − | 募集終了 | − | − | − | ||
| 2 | 41.00坪 | − | − | 募集終了 | − | − | − | ||
| 2 | 41.00坪 | − | − | 募集終了 | − | − | − | ||
| 3 | 20.73坪 | − | − | 募集終了 | − | − | − | ||
| 5 | 20.73坪 | − | − | 募集終了 | − | − | − | ||
| 6 | 20.73坪 | − | − | 募集終了 | − | − | − | ||
| 7 | 20.73坪 | − | − | 募集終了 | − | − | − |


