笠原ビルの貸事務所・賃貸オフィス情報
笠原ビルの貸事務所・賃貸オフィス情報
笠原ビル
- 物件番号
- 423-00250
- 所在地
- 東京都千代田区内神田1-6-10
- 竣工
- 2008年1月
- 規模
- 地上13階/地下1階
- エレベーター
- 個別空調
- 駐車場
- 新耐震基準
笠原ビルの空室フロアリスト
| 階数 | 面積 | 賃料+共益費 | 保証金 | 入居時期 | 更新料 | 償却費 | 礼金 | 検討 | 平面図 | 詳細 |
|---|---|---|---|---|---|---|---|---|---|---|
| 4 | 114.35坪 |
応相談応相談
|
応相談
|
2026年5月上旬 | なし | なし | なし |
笠原ビルの物件情報
笠原ビル(千代田区内神田)は大手町駅徒歩4分、神田駅徒歩6分、小川町駅徒歩8分の賃貸オフィスです。
笠原ビルのアクセス
笠原ビルの条件に近い物件
笠原ビルの募集終了区画
| 階数 | 面積 | 賃料+共益費 | 保証金 | 入居時期 | 更新料 | 償却費 | 礼金 | 平面図 | 詳細 |
|---|---|---|---|---|---|---|---|---|---|
| 1 | 65.34坪 | − | − | 募集終了 | − | − | − | ||
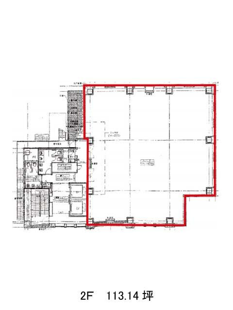
| 2 | 113.14坪 | − | − | 募集終了 | − | − | − | ||
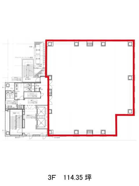
| 3 | 114.35坪 | − | − | 募集終了 | − | − | − | ||
| 5 | 141.91坪 | − | − | 募集終了 | − | − | − | ||
| 6 | 141.91坪 | − | − | 募集終了 | − | − | − | ||
| 7 | 38.12坪 | − | − | 募集終了 | − | − | − | ||
| 7 | 114.35坪 | − | − | 募集終了 | − | − | − | ||
| 10 | 114.35坪 | − | − | 募集終了 | − | − | − | ||
| 11 | 114.35坪 | − | − | 募集終了 | − | − | − |


