大手町ゲートビルディングの貸事務所・賃貸オフィス情報
大手町ゲートビルディングの貸事務所・賃貸オフィス情報
大手町ゲートビルディング
- 物件番号
- 423-00476
- 所在地
- 東京都千代田区内神田1-31-11
- 竣工
- 2026年7月
- 規模
- 地上26階/地下3階
- エレベーター
- 駐車場
- 新耐震基準
大手町ゲートビルディングの空室フロアリスト
| 階数 | 面積 | 賃料+共益費 | 保証金 | 入居時期 | 更新料 | 償却費 | 礼金 | 検討 | 平面図 | 詳細 |
|---|---|---|---|---|---|---|---|---|---|---|
| 8 | 179.20坪 |
応相談応相談
|
応相談
|
2027年2月上旬 | なし | なし | なし | |||
| 18 | 157.50坪 |
応相談応相談
|
応相談
|
2027年2月上旬 | なし | なし | なし | |||
| 18 | 48.50坪 |
応相談応相談
|
応相談
|
2027年2月上旬 | なし | なし | なし | |||
| 18 | 48.50坪 |
応相談応相談
|
応相談
|
2027年2月上旬 | なし | なし | なし | |||
| 18 | 94.50坪 |
応相談応相談
|
応相談
|
2027年2月上旬 | なし | なし | なし | |||
| 18 | 34.80坪 |
応相談応相談
|
応相談
|
2027年2月上旬 | なし | なし | なし |
大手町ゲートビルディングの物件情報
大手町ゲートビルディング(千代田区内神田)は大手町駅徒歩4分、神田駅徒歩6分、新日本橋駅徒歩9分の賃貸オフィスです。
大手町ゲートビルディングのアクセス
大手町ゲートビルディングの条件に近い物件
大手町ゲートビルディングの募集終了区画
| 階数 | 面積 | 賃料+共益費 | 保証金 | 入居時期 | 更新料 | 償却費 | 礼金 | 平面図 | 詳細 |
|---|---|---|---|---|---|---|---|---|---|
| 11 | 633.00坪 | − | − | 募集終了 | − | − | − | ||
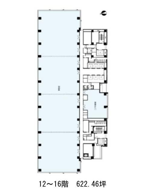
| 12 | 622.46坪 | − | − | 募集終了 | − | − | − | ||
| 12 | 633.00坪 | − | − | 募集終了 | − | − | − | ||
| 13 | 622.46坪 | − | − | 募集終了 | − | − | − | ||
| 14 | 622.46坪 | − | − | 募集終了 | − | − | − | ||
| 15 | 622.46坪 | − | − | 募集終了 | − | − | − | ||
| 16 | 622.46坪 | − | − | 募集終了 | − | − | − | ||
| 17 | 624.96坪 | − | − | 募集終了 | − | − | − | ||
| 18 | 624.96坪 | − | − | 募集終了 | − | − | − | ||
| 18 | 659.09坪 | − | − | 募集終了 | − | − | − | ||
| 18 | 131.10坪 | − | − | 募集終了 | − | − | − | ||
| 19 | 624.96坪 | − | − | 募集終了 | − | − | − | ||
| 20 | 624.96坪 | − | − | 募集終了 | − | − | − | ||
| 21 | 627.45坪 | − | − | 募集終了 | − | − | − | ||
| 22 | 627.45坪 | − | − | 募集終了 | − | − | − | ||
| 23 | 698.00坪 | − | − | 募集終了 | − | − | − | ||
| 24 | 698.00坪 | − | − | 募集終了 | − | − | − | ||
| 25 | 698.00坪 | − | − | 募集終了 | − | − | − |


