イワカタビルの貸事務所・賃貸オフィス情報
イワカタビルの貸事務所・賃貸オフィス情報
イワカタビル
- エレベーター
- 個別空調
- 新耐震基準
イワカタビルの空室フロアリスト
| 階数 | 面積 | 賃料+共益費 | 保証金 | 入居時期 | 更新料 | 償却費 | 礼金 | 検討 | 平面図 | 詳細 |
|---|---|---|---|---|---|---|---|---|---|---|
| 2 | 30.00坪 |
495,000円16,500円/坪
|
216万円
|
2026年6月下旬 | 新1ケ月 | なし | なし |
イワカタビルの物件情報
イワカタビル(千代田区内神田)は神田駅徒歩5分、大手町駅徒歩6分、小川町駅徒歩6分の賃貸オフィスです。
イワカタビルのアクセス
イワカタビルの条件に近い物件
イワカタビルの募集終了区画
| 階数 | 面積 | 賃料+共益費 | 保証金 | 入居時期 | 更新料 | 償却費 | 礼金 | 平面図 | 詳細 |
|---|---|---|---|---|---|---|---|---|---|
| 3 | 38.00坪 | − | − | 募集終了 | − | − | − | ||
| 4 | 38.00坪 | − | − | 募集終了 | − | − | − | ||
| 6 | 38.00坪 | − | − | 募集終了 | − | − | − | ||
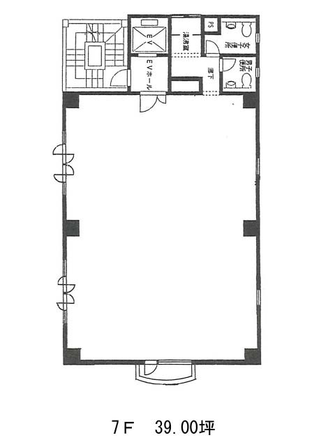
| 7 | 39.00坪 | − | − | 募集終了 | − | − | − |


