アイルズBMビルの貸事務所・賃貸オフィス情報
アイルズBMビルの貸事務所・賃貸オフィス情報
アイルズBMビル
- エレベーター
- 個別空調
- 新耐震基準
アイルズBMビルの空室フロアリスト
| 階数 | 面積 | 賃料+共益費 | 保証金 | 入居時期 | 更新料 | 償却費 | 礼金 | 検討 | 平面図 | 詳細 |
|---|---|---|---|---|---|---|---|---|---|---|
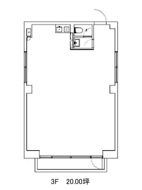
| 3 | 20.00坪 |
330,000円16,500円/坪
|
180万円
|
即 | 新1ケ月 | 2ケ月 | なし | |||
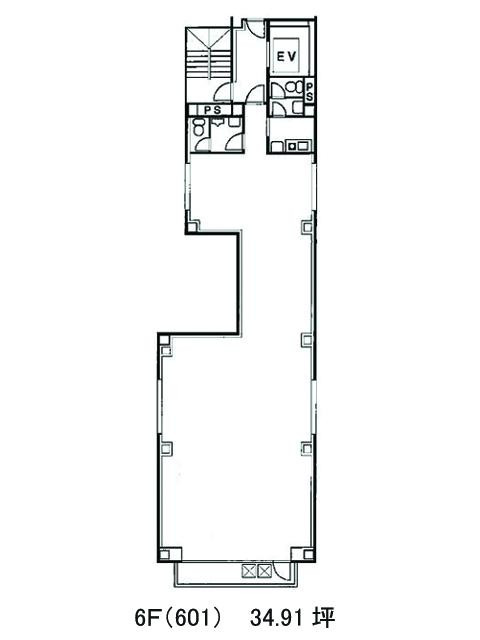
| 8 | 34.92坪 |
616,000円17,640円/坪
|
336万円
|
即 | 新1ケ月 | 2ケ月 | なし |
アイルズBMビルの物件情報
アイルズBMビル(千代田区飯田橋)は九段下駅徒歩4分、飯田橋駅徒歩6分、神保町駅徒歩9分の賃貸オフィスです。
アイルズBMビルのアクセス
アイルズBMビルの条件に近い物件
アイルズBMビルの募集終了区画
| 階数 | 面積 | 賃料+共益費 | 保証金 | 入居時期 | 更新料 | 償却費 | 礼金 | 平面図 | 詳細 |
|---|---|---|---|---|---|---|---|---|---|
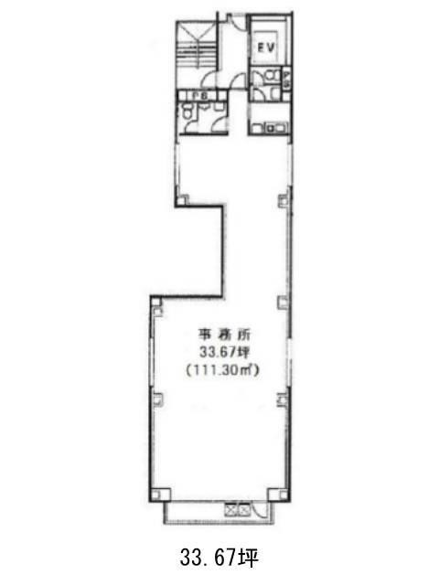
| 2 | 33.67坪 | − | − | 募集終了 | − | − | − | ||
| 6 | 34.92坪 | − | − | 募集終了 | − | − | − | ||
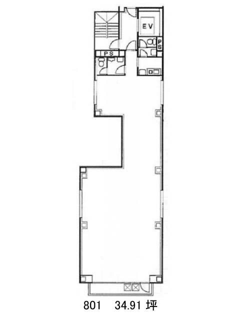
| 7 | 34.91坪 | − | − | 募集終了 | − | − | − |


