木下ビルの貸事務所・賃貸オフィス情報
木下ビルの貸事務所・賃貸オフィス情報
木下ビル
- 物件番号
- 559-00147
- 所在地
- 東京都台東区浅草橋2-27-11
- 竣工
- 1991年1月
- 規模
- 地上4階
- エレベーター
- 個別空調
- 新耐震基準
木下ビルの空室フロアリスト
| 階数 | 面積 | 賃料+共益費 | 保証金 | 入居時期 | 更新料 | 償却費 | 礼金 | 検討 | 平面図 | 詳細 |
|---|---|---|---|---|---|---|---|---|---|---|
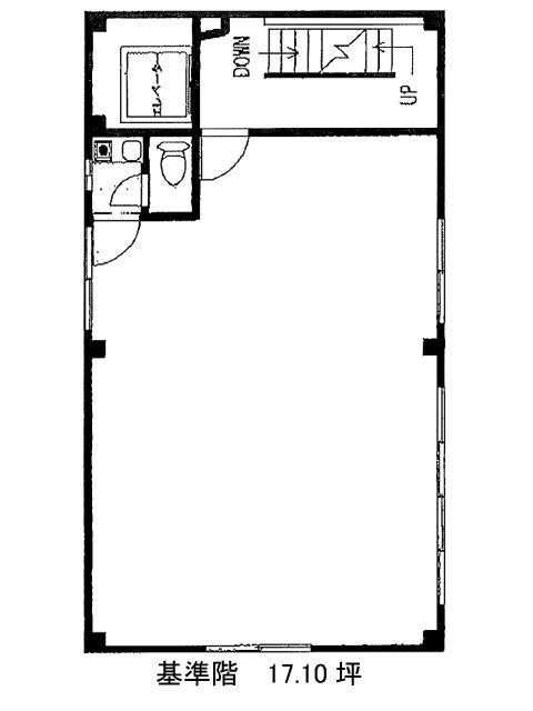
| 3 | 17.10坪 |
159,500円9,328円/坪
|
54万円
|
相談 | 新1ケ月 | なし | 2ケ月 |
木下ビルの物件情報
木下ビル(台東区浅草橋)は浅草橋駅徒歩4分、蔵前駅徒歩6分、馬喰町駅徒歩10分の賃貸オフィスです。
木下ビルのアクセス
木下ビルの募集終了区画
| 階数 | 面積 | 賃料+共益費 | 保証金 | 入居時期 | 更新料 | 償却費 | 礼金 | 平面図 | 詳細 |
|---|---|---|---|---|---|---|---|---|---|
| 2 | 17.10坪 | − | − | 募集終了 | − | − | − |


