岡田ビルの貸事務所・賃貸オフィス情報
岡田ビルの貸事務所・賃貸オフィス情報
岡田ビル
- エレベーター
- 新耐震基準
岡田ビルの空室フロアリスト
| 階数 | 面積 | 賃料+共益費 | 保証金 | 入居時期 | 更新料 | 償却費 | 礼金 | 検討 | 平面図 | 詳細 |
|---|---|---|---|---|---|---|---|---|---|---|
| 1 | 32.20坪 |
880,000円27,329円/坪
|
704万円
|
即 | 新1ケ月 | 2ケ月 | なし |
岡田ビルの物件情報
岡田ビル(台東区浅草橋)は浅草橋駅徒歩5分、蔵前駅徒歩5分、馬喰町駅徒歩10分の賃貸オフィスです。
岡田ビルのアクセス
岡田ビルの条件に近い物件
岡田ビルの募集終了区画
| 階数 | 面積 | 賃料+共益費 | 保証金 | 入居時期 | 更新料 | 償却費 | 礼金 | 平面図 | 詳細 |
|---|---|---|---|---|---|---|---|---|---|
| 3 | 41.52坪 | − | − | 募集終了 | − | − | − | ||
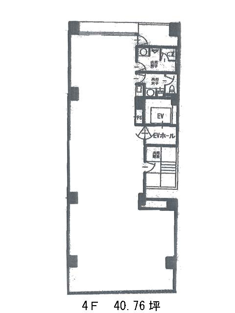
| 4 | 40.76坪 | − | − | 募集終了 | − | − | − | ||
| 5 | 31.10坪 | − | − | 募集終了 | − | − | − |


