現在、空室がございません。
日の出ビルの貸事務所・賃貸オフィス情報
日の出ビルの貸事務所・賃貸オフィス情報
日の出ビル
- 物件番号
- 559-00296
- 所在地
- 東京都台東区浅草橋2-27-10
- 竣工
- 1982年6月
- 規模
- 地上5階
- エレベーター
- 耐震確認中
日の出ビルの空室フロアリスト
現在、空室がございません。
日の出ビルの物件情報
日の出ビル(台東区浅草橋)は浅草橋駅徒歩4分、蔵前駅徒歩6分、馬喰町駅徒歩10分の賃貸オフィスです。
日の出ビルのアクセス
日の出ビルの募集終了区画
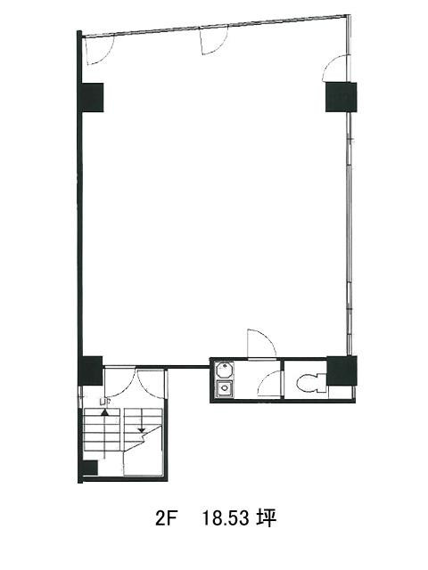
| 階数 | 面積 | 賃料+共益費 | 保証金 | 入居時期 | 更新料 | 償却費 | 礼金 | 平面図 | 詳細 |
|---|---|---|---|---|---|---|---|---|---|
| 1 | 24.32坪 | − | − | 募集終了 | − | − | − | ||
| 2 | 18.53坪 | − | − | 募集終了 | − | − | − |


