現在、空室がございません。
アイランドビルディングの貸事務所・賃貸オフィス情報
アイランドビルディングの貸事務所・賃貸オフィス情報
アイランドビルディング
- エレベーター
- 個別空調
- 新耐震基準
アイランドビルディングの空室フロアリスト
現在、空室がございません。
アイランドビルディングの物件情報
アイランドビルディング(台東区蔵前)は蔵前駅徒歩2分、浅草橋駅徒歩6分、馬喰町駅徒歩13分の賃貸オフィスです。
アイランドビルディングのアクセス
アイランドビルディングの条件に近い物件
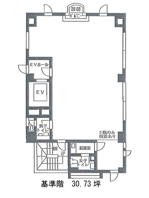
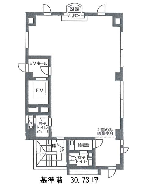
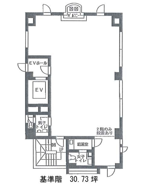
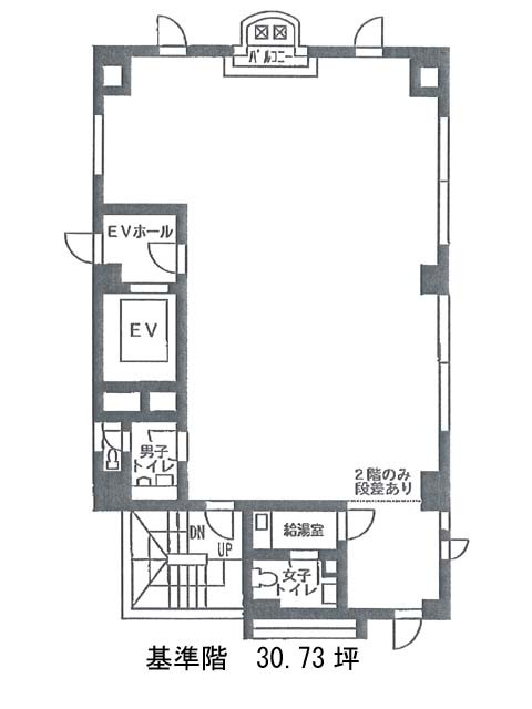
アイランドビルディングの募集終了区画
| 階数 | 面積 | 賃料+共益費 | 保証金 | 入居時期 | 更新料 | 償却費 | 礼金 | 平面図 | 詳細 |
|---|---|---|---|---|---|---|---|---|---|
| 1 | 18.69坪 | − | − | 募集終了 | − | − | − | ||
| 2 | 30.73坪 | − | − | 募集終了 | − | − | − | ||
| 3 | 30.73坪 | − | − | 募集終了 | − | − | − | ||
| 4 | 30.73坪 | − | − | 募集終了 | − | − | − | ||
| 5 | 30.73坪 | − | − | 募集終了 | − | − | − | ||
| 6 | 30.73坪 | − | − | 募集終了 | − | − | − | ||
| 7 | 30.73坪 | − | − | 募集終了 | − | − | − |


