0120-16-2331

【受付時間】平日 AM9:00〜PM7:00

メールでお問合せ

TKD鳥越ビルの貸事務所・賃貸オフィス情報

TKD鳥越ビルの貸事務所・賃貸オフィス情報

TKD鳥越ビル

物件番号
564​-​00043
所在地
東京都台東区鳥越2-13-10
最寄駅
竣工
2016年5月
規模
地上5階
  • エレベーター
  • 駐車場
  • 新耐震基準

TKD鳥越ビルの空室フロアリスト

階数 面積 賃料+共益費 保証金 入居時期 更新料 償却費 礼金 検討 平面図 詳細
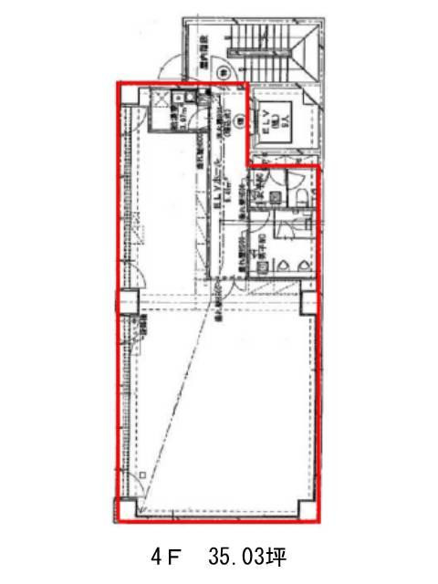
4 35.03坪
616,528円17,600円/坪
448万円
新1ケ月 なし なし

TKD鳥越ビルの物件情報

TKD鳥越ビルのアクセス

TKD鳥越ビルの条件に近い物件

モディビル

東京都台東区鳥越2-9-6

モディビル
  • 面積 24.99坪
  • 空きフロア 1
  • 最寄り駅
    蔵前駅 徒歩7分

TKD鳥越ビルの募集終了区画

階数 面積 賃料+共益費 保証金 入居時期 更新料 償却費 礼金 平面図 詳細
お問合せ このビルについて問い合わせる