依田忠ビルディングの貸事務所・賃貸オフィス情報
依田忠ビルディングの貸事務所・賃貸オフィス情報
依田忠ビルディング
- エレベーター
- 個別空調
- 旧耐震基準
依田忠ビルディングの空室フロアリスト
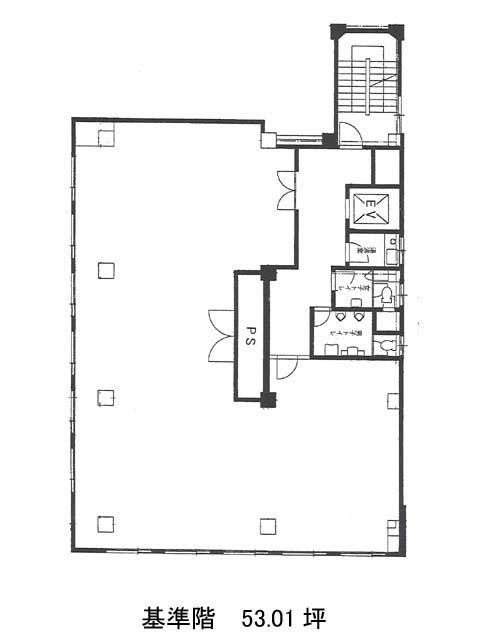
| 階数 | 面積 | 賃料+共益費 | 保証金 | 入居時期 | 更新料 | 償却費 | 礼金 | 検討 | 平面図 | 詳細 |
|---|---|---|---|---|---|---|---|---|---|---|
| 6 | 53.01坪 |
991,287円18,700円/坪
|
593万円
|
即 | 新1ケ月 | 1ケ月 | なし |
依田忠ビルディングの物件情報
依田忠ビルディング(中央区京橋)は宝町駅徒歩3分、京橋駅徒歩4分、日本橋駅徒歩7分の賃貸オフィスです。
依田忠ビルディングのアクセス
依田忠ビルディングの条件に近い物件
依田忠ビルディングの募集終了区画
| 階数 | 面積 | 賃料+共益費 | 保証金 | 入居時期 | 更新料 | 償却費 | 礼金 | 平面図 | 詳細 |
|---|---|---|---|---|---|---|---|---|---|
| 3 | 52.01坪 | − | − | 募集終了 | − | − | − | ||
| 4 | 50.99坪 | − | − | 募集終了 | − | − | − | ||
| 5 | 53.01坪 | − | − | 募集終了 | − | − | − | ||
| 5 | 61.63坪 | − | − | 募集終了 | − | − | − | ||
| 6 | 61.63坪 | − | − | 募集終了 | − | − | − | ||
| 7 | 53.01坪 | − | − | 募集終了 | − | − | − | ||
| 7 | 64.99坪 | − | − | 募集終了 | − | − | − | ||
| 7 | 53.01坪 | − | − | 募集終了 | − | − | − | ||
| 8 | 35.00坪 | − | − | 募集終了 | − | − | − | ||
| 9 | 21.23坪 | − | − | 募集終了 | − | − | − |


