RBM築地スクエアの貸事務所・賃貸オフィス情報
RBM築地スクエアの貸事務所・賃貸オフィス情報
RBM築地スクエア
- エレベーター
- 個別空調
- 駐車場
- 新耐震基準
RBM築地スクエアの空室フロアリスト
| 階数 | 面積 | 賃料+共益費 | 保証金 | 入居時期 | 更新料 | 償却費 | 礼金 | 検討 | 平面図 | 詳細 |
|---|---|---|---|---|---|---|---|---|---|---|
| 2 | 112.11坪 |
応相談応相談
|
応相談
|
2026年3月 | なし | なし | なし | |||
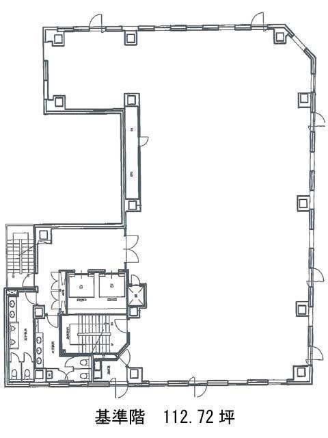
| 4 | 112.72坪 |
応相談応相談
|
応相談
|
2026年3月上旬 | なし | なし | なし | |||
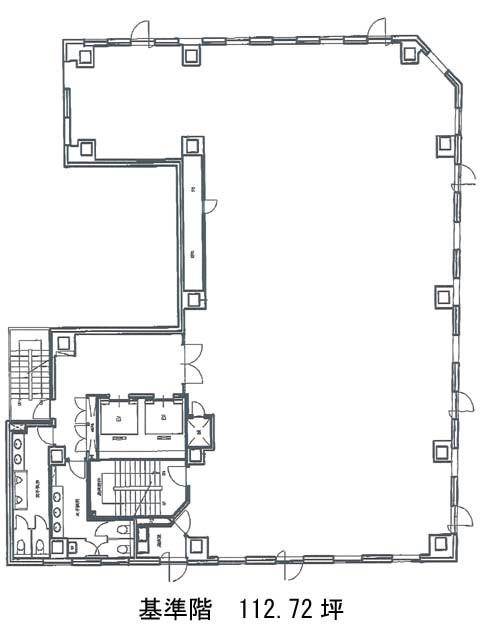
| 5 | 112.72坪 |
応相談応相談
|
応相談
|
2026年3月上旬 | なし | なし | なし |
RBM築地スクエアの物件情報
RBM築地スクエア(中央区新富)は八丁堀駅徒歩4分、新富町駅徒歩4分、築地駅徒歩6分の賃貸オフィスです。
RBM築地スクエアのアクセス
RBM築地スクエアの募集終了区画
| 階数 | 面積 | 賃料+共益費 | 保証金 | 入居時期 | 更新料 | 償却費 | 礼金 | 平面図 | 詳細 |
|---|---|---|---|---|---|---|---|---|---|
| 1 | 30.98坪 | − | − | 募集終了 | − | − | − | ||
| 3 | 112.72坪 | − | − | 募集終了 | − | − | − | ||
| 6 | 112.72坪 | − | − | 募集終了 | − | − | − | ||
| 7 | 112.72坪 | − | − | 募集終了 | − | − | − | ||
| 8 | 100.66坪 | − | − | 募集終了 | − | − | − | ||
| 9 | 112.72坪 | − | − | 募集終了 | − | − | − |


