フェニックスビルの貸事務所・賃貸オフィス情報
フェニックスビルの貸事務所・賃貸オフィス情報
フェニックスビル
- エレベーター
- 個別空調
- 旧耐震基準
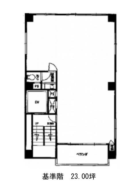
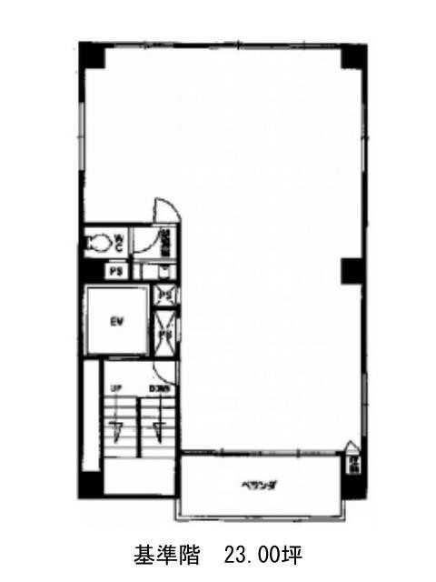
フェニックスビルの空室フロアリスト
| 階数 | 面積 | 賃料+共益費 | 保証金 | 入居時期 | 更新料 | 償却費 | 礼金 | 検討 | 平面図 | 詳細 |
|---|---|---|---|---|---|---|---|---|---|---|
| 4 | 23.00坪 |
366,850円15,950円/坪
|
165万円
|
2026年6月上旬 | 新1ケ月 | 2ケ月 | なし |
フェニックスビルの物件情報
フェニックスビル(中央区築地)は築地駅徒歩2分、新富町駅徒歩3分、東銀座駅徒歩7分の賃貸オフィスです。
フェニックスビルのアクセス
フェニックスビルの条件に近い物件
フェニックスビルの募集終了区画
| 階数 | 面積 | 賃料+共益費 | 保証金 | 入居時期 | 更新料 | 償却費 | 礼金 | 平面図 | 詳細 |
|---|---|---|---|---|---|---|---|---|---|
| B1-1 | 39.29坪 | − | − | 募集終了 | − | − | − | ||
| 2 | 23.00坪 | − | − | 募集終了 | − | − | − |


