築地センタービルの貸事務所・賃貸オフィス情報
築地センタービルの貸事務所・賃貸オフィス情報
築地センタービル
- 物件番号
- 640-00022
- 所在地
- 東京都中央区築地6-25-10
- 竣工
- 1993年6月
- 規模
- 地上11階/地下1階
- エレベーター
- 個別空調
- 駐車場
- 新耐震基準
築地センタービルの空室フロアリスト
| 階数 | 面積 | 賃料+共益費 | 保証金 | 入居時期 | 更新料 | 償却費 | 礼金 | 検討 | 平面図 | 詳細 |
|---|---|---|---|---|---|---|---|---|---|---|
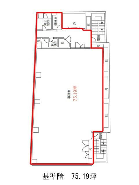
| 5-6 | 150.38坪 |
2,812,106円18,700円/坪
|
1533万円
|
即 | 新1ケ月 | なし | 1ケ月 | |||
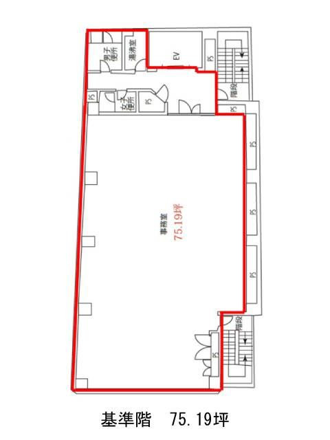
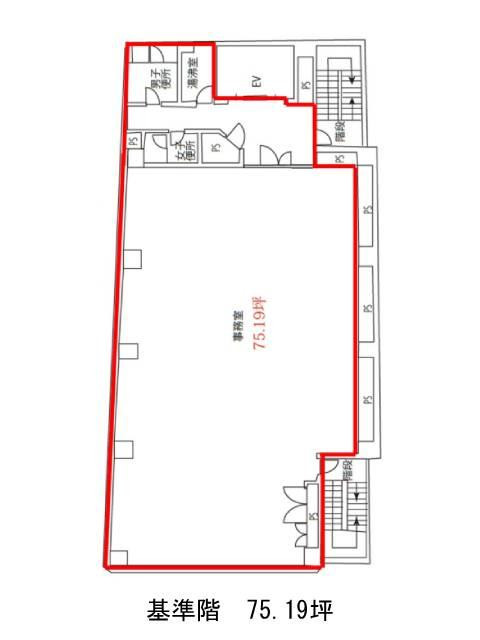
| 5 | 75.19坪 |
1,406,053円18,700円/坪
|
766万円
|
即 | 新1ケ月 | なし | 1ケ月 | |||
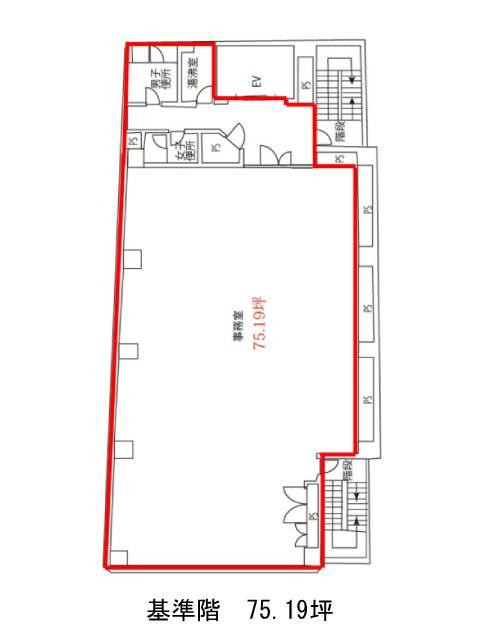
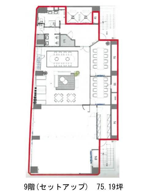
| 6 | 75.19坪 |
1,406,053円18,700円/坪
|
766万円
|
即 | 新1ケ月 | なし | 1ケ月 |
築地センタービルの物件情報
築地センタービル(中央区築地)は築地駅徒歩5分、築地市場駅徒歩7分、東銀座駅徒歩8分の賃貸オフィスです。
築地センタービルのアクセス
築地センタービルの条件に近い物件
築地センタービルの募集終了区画
| 階数 | 面積 | 賃料+共益費 | 保証金 | 入居時期 | 更新料 | 償却費 | 礼金 | 平面図 | 詳細 |
|---|---|---|---|---|---|---|---|---|---|
| 地下1 | 55.00坪 | − | − | 募集終了 | − | − | − | ||
| 2 | 75.19坪 | − | − | 募集終了 | − | − | − | ||
| 3 | 75.19坪 | − | − | 募集終了 | − | − | − | ||
| 4 | 75.19坪 | − | − | 募集終了 | − | − | − | ||
| 7 | 75.19坪 | − | − | 募集終了 | − | − | − | ||
| 8 | 75.19坪 | − | − | 募集終了 | − | − | − | ||
| 9 | 75.19坪 | − | − | 募集終了 | − | − | − | ||
| 10 | 75.19坪 | − | − | 募集終了 | − | − | − | ||
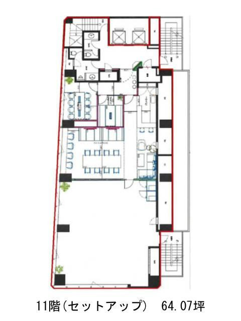
| 11 | 64.07坪 | − | − | 募集終了 | − | − | − |


