築地高野ビルの貸事務所・賃貸オフィス情報
築地高野ビルの貸事務所・賃貸オフィス情報
築地高野ビル
- エレベーター
- 個別空調
- 新耐震基準
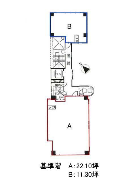
築地高野ビルの空室フロアリスト
| 階数 | 面積 | 賃料+共益費 | 保証金 | 入居時期 | 更新料 | 償却費 | 礼金 | 検討 | 平面図 | 詳細 |
|---|---|---|---|---|---|---|---|---|---|---|
| 5 | 22.10坪 |
364,650円16,500円/坪
|
165万円
|
2026年4月 | 新1ケ月 | 1ケ月 | なし |
築地高野ビルの物件情報
築地高野ビル(中央区築地)は築地駅徒歩3分、新富町駅徒歩5分、東銀座駅徒歩9分の賃貸オフィスです。
築地高野ビルのアクセス
築地高野ビルの条件に近い物件
築地高野ビルの募集終了区画
| 階数 | 面積 | 賃料+共益費 | 保証金 | 入居時期 | 更新料 | 償却費 | 礼金 | 平面図 | 詳細 |
|---|---|---|---|---|---|---|---|---|---|
| 3 | 22.10坪 | − | − | 募集終了 | − | − | − | ||
| 4 | 22.10坪 | − | − | 募集終了 | − | − | − | ||
| 6 | 22.10坪 | − | − | 募集終了 | − | − | − |


