旭光ビルの貸事務所・賃貸オフィス情報
旭光ビルの貸事務所・賃貸オフィス情報
旭光ビル
- 物件番号
- 657-00064
- 所在地
- 東京都中央区日本橋浜町3-41-4
- 竣工
- 1991年10月
- 規模
- 地上9階/地下1階
- エレベーター
- 個別空調
- 新耐震基準
旭光ビルの空室フロアリスト
| 階数 | 面積 | 賃料+共益費 | 保証金 | 入居時期 | 更新料 | 償却費 | 礼金 | 検討 | 平面図 | 詳細 |
|---|---|---|---|---|---|---|---|---|---|---|
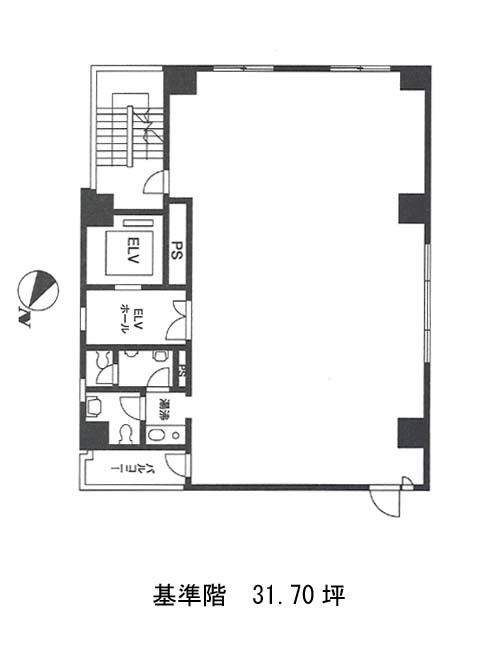
| 9 | 31.70坪 |
523,050円16,500円/坪
|
190万円
|
即 | 新1ケ月 | 1ケ月 | なし |
旭光ビルの物件情報
旭光ビル(中央区日本橋浜町)は浜町駅徒歩5分、森下駅徒歩8分、水天宮前駅徒歩8分の賃貸オフィスです。
旭光ビルのアクセス
旭光ビルの条件に近い物件
旭光ビルの募集終了区画
| 階数 | 面積 | 賃料+共益費 | 保証金 | 入居時期 | 更新料 | 償却費 | 礼金 | 平面図 | 詳細 |
|---|---|---|---|---|---|---|---|---|---|
| 1 | 22.56坪 | − | − | 募集終了 | − | − | − | ||
| 2 | 31.70坪 | − | − | 募集終了 | − | − | − | ||
| 3 | 31.70坪 | − | − | 募集終了 | − | − | − | ||
| 4 | 31.70坪 | − | − | 募集終了 | − | − | − | ||
| 6 | 31.70坪 | − | − | 募集終了 | − | − | − | ||
| 7 | 31.70坪 | − | − | 募集終了 | − | − | − | ||
| 8 | 31.70坪 | − | − | 募集終了 | − | − | − |


