0120-16-2331

【受付時間】平日 AM9:00〜PM7:00

メールでお問合せ
現在、空室がございません。

日本橋ライフサイエンスビルディング8の貸事務所・賃貸オフィス情報

日本橋ライフサイエンスビルディング8の貸事務所・賃貸オフィス情報

日本橋ライフサイエンスビルディング8

物件番号
659​-​00042
所在地
東京都中央区日本橋堀留町1-3-15
最寄駅
竣工
1988年3月
規模
地上8階/地下1階
  • エレベーター
  • 個別空調
  • 駐車場
  • 新耐震基準

日本橋ライフサイエンスビルディング8の空室フロアリスト

現在、空室がございません。

日本橋ライフサイエンスビルディング8の物件情報

日本橋ライフサイエンスビルディング8(中央区日本橋堀留町)は小伝馬町駅徒歩4分、人形町駅徒歩6分、新日本橋駅徒歩7分の賃貸オフィスです。

日本橋ライフサイエンスビルディング8のアクセス

日本橋ライフサイエンスビルディング8の募集終了区画

階数 面積 賃料+共益費 保証金 入居時期 更新料 償却費 礼金 平面図 詳細
1 22.74坪 募集終了
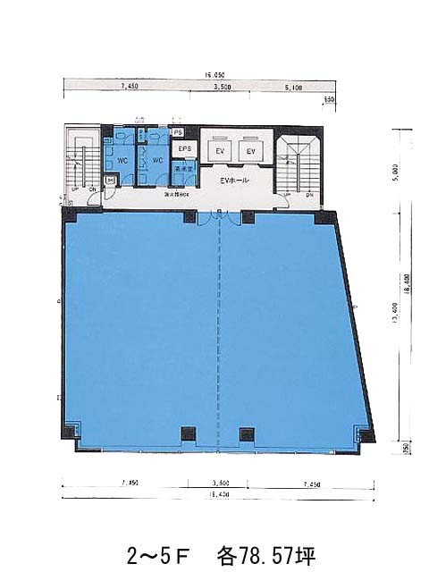
2 78.57坪 募集終了
2 73.34坪 募集終了
3 78.54坪 募集終了
4 36.73坪 募集終了
4 41.84坪 募集終了
4 73.34坪 募集終了
5 78.57坪 募集終了
5 73.34坪 募集終了
6 64.29坪 募集終了
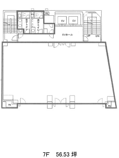
7 56.53坪 募集終了
7 23.85坪 募集終了
8 44.05坪 募集終了

貸事務所・賃貸オフィスを最寄駅から探す

貸事務所・賃貸オフィスを最寄駅の沿線から探す

お問合せ このビルについて問い合わせる