JL日本橋ビルの貸事務所・賃貸オフィス情報
JL日本橋ビルの貸事務所・賃貸オフィス情報
JL日本橋ビル
- 物件番号
- 659-00052
- 所在地
- 東京都中央区日本橋堀留町1-10-15
- 竣工
- 1993年9月
- 規模
- 地上9階
- エレベーター
- 個別空調
- 駐車場
- 新耐震基準
JL日本橋ビルの空室フロアリスト
| 階数 | 面積 | 賃料+共益費 | 保証金 | 入居時期 | 更新料 | 償却費 | 礼金 | 検討 | 平面図 | 詳細 |
|---|---|---|---|---|---|---|---|---|---|---|
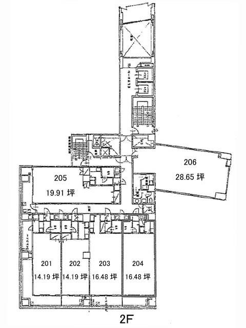
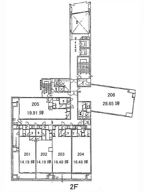
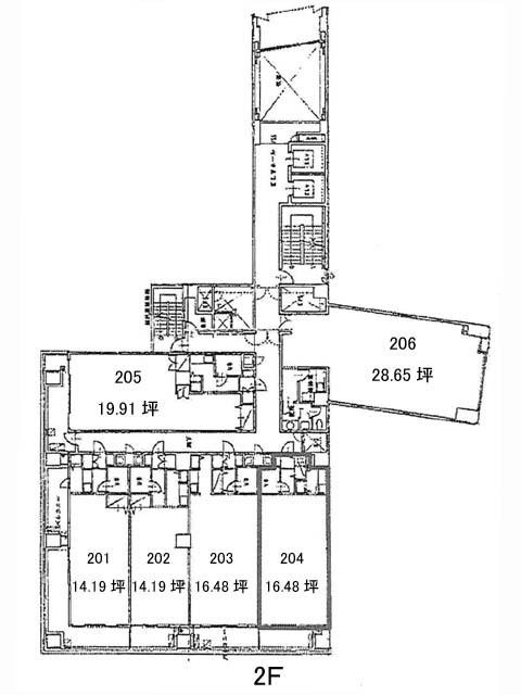
| 2 | 19.91坪 |
応相談応相談
|
応相談
|
2026年3月上旬 | なし | なし | なし |
JL日本橋ビルの物件情報
JL日本橋ビル(中央区日本橋堀留町)は人形町駅徒歩4分、小伝馬町駅徒歩5分、馬喰横山駅徒歩7分の賃貸オフィスです。
JL日本橋ビルのアクセス
JL日本橋ビルの募集終了区画
| 階数 | 面積 | 賃料+共益費 | 保証金 | 入居時期 | 更新料 | 償却費 | 礼金 | 平面図 | 詳細 |
|---|---|---|---|---|---|---|---|---|---|
| 1 | 108.37坪 | − | − | 募集終了 | − | − | − | ||
| 2 | 16.48坪 | − | − | 募集終了 | − | − | − | ||
| 2 | 16.48坪 | − | − | 募集終了 | − | − | − | ||
| 2 | 28.65坪 | − | − | 募集終了 | − | − | − | ||
| 3 | 147.87坪 | − | − | 募集終了 | − | − | − | ||
| 4 | 147.87坪 | − | − | 募集終了 | − | − | − | ||
| 5 | 147.87坪 | − | − | 募集終了 | − | − | − | ||
| 6 | 147.87坪 | − | − | 募集終了 | − | − | − | ||
| 6 | 21.80坪 | − | − | 募集終了 | − | − | − | ||
| 7 | 147.87坪 | − | − | 募集終了 | − | − | − | ||
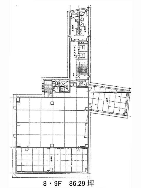
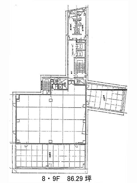
| 8 | 86.29坪 | − | − | 募集終了 | − | − | − | ||
| 9 | 86.29坪 | − | − | 募集終了 | − | − | − |


