日本橋本町THビルの貸事務所・賃貸オフィス情報
日本橋本町THビルの貸事務所・賃貸オフィス情報
日本橋本町THビル
- 物件番号
- 661-00230
- 所在地
- 東京都中央区日本橋本町4-5-13
- 竣工
- 1963年5月
- 規模
- 地上9階/地下1階
- エレベーター
- 個別空調
- 耐震補強済み
日本橋本町THビルの空室フロアリスト
| 階数 | 面積 | 賃料+共益費 | 保証金 | 入居時期 | 更新料 | 償却費 | 礼金 | 検討 | 平面図 | 詳細 |
|---|---|---|---|---|---|---|---|---|---|---|
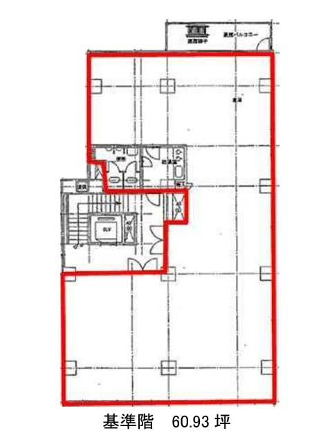
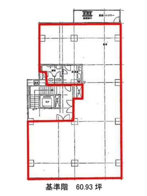
| 4 | 60.93坪 |
1,139,391円18,700円/坪
|
883万円
|
2026年5月中旬 | 新1ケ月 | 2ケ月 | なし |
日本橋本町THビルの物件情報
日本橋本町THビル(中央区日本橋本町)は新日本橋駅徒歩3分、小伝馬町駅徒歩6分、三越前駅徒歩7分の賃貸オフィスです。
日本橋本町THビルのアクセス
日本橋本町THビルの条件に近い物件
日本橋本町THビルの募集終了区画
| 階数 | 面積 | 賃料+共益費 | 保証金 | 入居時期 | 更新料 | 償却費 | 礼金 | 平面図 | 詳細 |
|---|---|---|---|---|---|---|---|---|---|
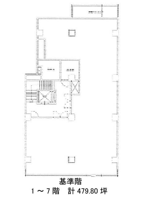
| 0 | 479.30坪 | − | − | 募集終了 | − | − | − | ||
| 1 | 32.47坪 | − | − | 募集終了 | − | − | − | ||
| 2 | 60.10坪 | − | − | 募集終了 | − | − | − | ||
| 3 | 60.93坪 | − | − | 募集終了 | − | − | − | ||
| 5 | 60.93坪 | − | − | 募集終了 | − | − | − | ||
| 6 | 54.94坪 | − | − | 募集終了 | − | − | − | ||
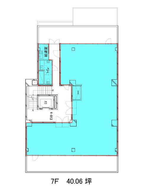
| 7 | 40.06坪 | − | − | 募集終了 | − | − | − |


