八丁堀共同ビルの貸事務所・賃貸オフィス情報
八丁堀共同ビルの貸事務所・賃貸オフィス情報
八丁堀共同ビル
- エレベーター
- 個別空調
- 耐震確認中
八丁堀共同ビルの空室フロアリスト
| 階数 | 面積 | 賃料+共益費 | 保証金 | 入居時期 | 更新料 | 償却費 | 礼金 | 検討 | 平面図 | 詳細 |
|---|---|---|---|---|---|---|---|---|---|---|
| 4 | 26.04坪 |
343,728円13,200円/坪
|
93万円
|
2026年5月中旬 | 新1ケ月 | なし | なし | |||
| 5 | 27.47坪 |
362,604円13,200円/坪
|
98万円
|
2026年2月上旬 | 新1ケ月 | なし | なし |
八丁堀共同ビルの物件情報
八丁堀共同ビル(中央区八丁堀)は八丁堀駅徒歩3分、宝町駅徒歩5分、茅場町駅徒歩7分の賃貸オフィスです。
八丁堀共同ビルのアクセス
八丁堀共同ビルの募集終了区画
| 階数 | 面積 | 賃料+共益費 | 保証金 | 入居時期 | 更新料 | 償却費 | 礼金 | 平面図 | 詳細 |
|---|---|---|---|---|---|---|---|---|---|
| 地下1 | 72.84坪 | − | − | 募集終了 | − | − | − | ||
| 2 | 24.02坪 | − | − | 募集終了 | − | − | − | ||
| 2 | 24.39坪 | − | − | 募集終了 | − | − | − | ||
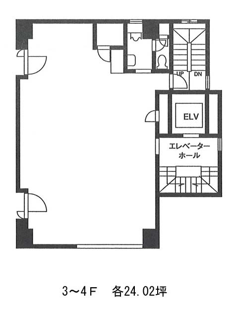
| 3 | 24.02坪 | − | − | 募集終了 | − | − | − | ||
| 3 | 26.88坪 | − | − | 募集終了 | − | − | − | ||
| 4 | 26.89坪 | − | − | 募集終了 | − | − | − | ||
| 4 | 24.02坪 | − | − | 募集終了 | − | − | − | ||
| 6 | 21.99坪 | − | − | 募集終了 | − | − | − | ||
| 6 | 26.89坪 | − | − | 募集終了 | − | − | − |


