八丁堀フロンティアビルの貸事務所・賃貸オフィス情報
八丁堀フロンティアビルの貸事務所・賃貸オフィス情報
八丁堀フロンティアビル
- エレベーター
- 個別空調
- 新耐震基準
八丁堀フロンティアビルの空室フロアリスト
| 階数 | 面積 | 賃料+共益費 | 保証金 | 入居時期 | 更新料 | 償却費 | 礼金 | 検討 | 平面図 | 詳細 |
|---|---|---|---|---|---|---|---|---|---|---|
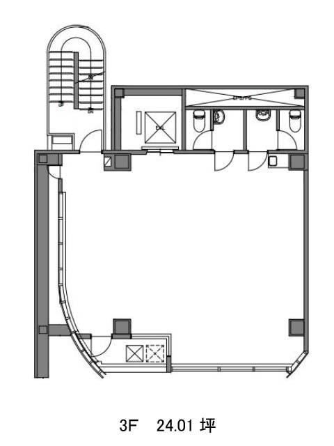
| 3 | 24.01坪 |
475,398円19,800円/坪
|
86万円
|
2026年8月上旬 | 新1ケ月 | 1ケ月 | なし |
八丁堀フロンティアビルの物件情報
八丁堀フロンティアビル(中央区八丁堀)は八丁堀駅徒歩2分、新富町駅徒歩7分、宝町駅徒歩8分の賃貸オフィスです。
八丁堀フロンティアビルのアクセス
八丁堀フロンティアビルの条件に近い物件
八丁堀フロンティアビルの募集終了区画
| 階数 | 面積 | 賃料+共益費 | 保証金 | 入居時期 | 更新料 | 償却費 | 礼金 | 平面図 | 詳細 |
|---|---|---|---|---|---|---|---|---|---|
| 1 | 15.73坪 | − | − | 募集終了 | − | − | − | ||
| 2 | 24.46坪 | − | − | 募集終了 | − | − | − | ||
| 4 | 24.46坪 | − | − | 募集終了 | − | − | − | ||
| 5 | 24.46坪 | − | − | 募集終了 | − | − | − | ||
| 6 | 22.82坪 | − | − | 募集終了 | − | − | − |


