八丁堀岡谷ビルの貸事務所・賃貸オフィス情報
八丁堀岡谷ビルの貸事務所・賃貸オフィス情報
八丁堀岡谷ビル
- 物件番号
- 665-00139
- 所在地
- 東京都中央区八丁堀4-11-5
- 竣工
- 1998年11月
- 規模
- 地上6階/地下1階
- エレベーター
- 個別空調
- 駐車場
- 新耐震基準
八丁堀岡谷ビルの空室フロアリスト
| 階数 | 面積 | 賃料+共益費 | 保証金 | 入居時期 | 更新料 | 償却費 | 礼金 | 検討 | 平面図 | 詳細 |
|---|---|---|---|---|---|---|---|---|---|---|
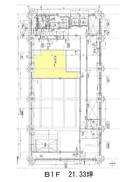
| 地下1 | 21.33坪 |
187,704円8,800円/坪
|
102万円
|
即 | なし | なし | なし | |||
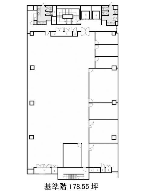
| 4 | 178.55坪 |
3,928,100円22,000円/坪
|
3428万円
|
即 | なし | なし | なし | |||
| 6 | 63.02坪 |
1,386,440円22,000円/坪
|
1209万円
|
即 | なし | なし | なし |
八丁堀岡谷ビルの物件情報
八丁堀岡谷ビル(中央区八丁堀)は八丁堀駅徒歩2分、新富町駅徒歩7分、宝町駅徒歩8分の賃貸オフィスです。
八丁堀岡谷ビルのアクセス
八丁堀岡谷ビルの条件に近い物件
八丁堀岡谷ビルの募集終了区画
| 階数 | 面積 | 賃料+共益費 | 保証金 | 入居時期 | 更新料 | 償却費 | 礼金 | 平面図 | 詳細 |
|---|---|---|---|---|---|---|---|---|---|
| 地下1 | 27.21坪 | − | − | 募集終了 | − | − | − | ||
| 3 | 178.55坪 | − | − | 募集終了 | − | − | − | ||
| 4 | 48.39坪 | − | − | 募集終了 | − | − | − | ||
| 5 | 179.42坪 | − | − | 募集終了 | − | − | − | ||
| 6 | 92.16坪 | − | − | 募集終了 | − | − | − | ||
| 6 | 179.12坪 | − | − | 募集終了 | − | − | − | ||
| 6 | 56.95坪 | − | − | 募集終了 | − | − | − |


