藤和八丁堀ビルの貸事務所・賃貸オフィス情報
藤和八丁堀ビルの貸事務所・賃貸オフィス情報
藤和八丁堀ビル
- 物件番号
- 665-00138
- 所在地
- 東京都中央区八丁堀2-20-1
- 竣工
- 1991年3月
- 規模
- 地上8階/地下1階
- エレベーター
- 個別空調
- 新耐震基準
藤和八丁堀ビルの空室フロアリスト
| 階数 | 面積 | 賃料+共益費 | 保証金 | 入居時期 | 更新料 | 償却費 | 礼金 | 検討 | 平面図 | 詳細 |
|---|---|---|---|---|---|---|---|---|---|---|
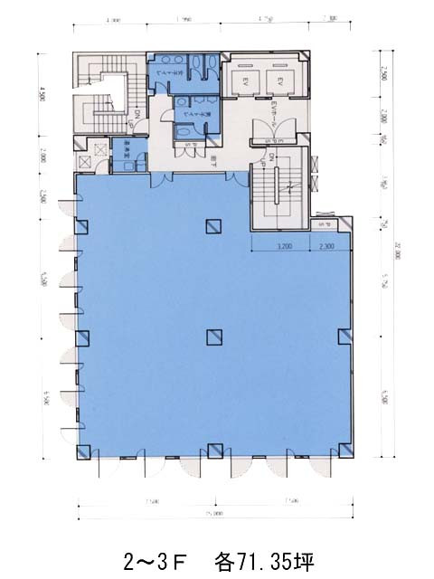
| 2 | 71.35坪 |
応相談応相談
|
応相談
|
2026年5月中旬 | なし | なし | なし |
藤和八丁堀ビルの物件情報
藤和八丁堀ビル(中央区八丁堀)は八丁堀駅徒歩2分、茅場町駅徒歩6分、宝町駅徒歩7分の賃貸オフィスです。
藤和八丁堀ビルのアクセス
藤和八丁堀ビルの募集終了区画
| 階数 | 面積 | 賃料+共益費 | 保証金 | 入居時期 | 更新料 | 償却費 | 礼金 | 平面図 | 詳細 |
|---|---|---|---|---|---|---|---|---|---|
| 地下1 | 65.34坪 | − | − | 募集終了 | − | − | − | ||
| 3 | 71.35坪 | − | − | 募集終了 | − | − | − | ||
| 4 | 69.33坪 | − | − | 募集終了 | − | − | − | ||
| 5 | 69.33坪 | − | − | 募集終了 | − | − | − | ||
| 6 | 69.33坪 | − | − | 募集終了 | − | − | − | ||
| 6 | 61.56坪 | − | − | 募集終了 | − | − | − | ||
| 7 | 44.80坪 | − | − | 募集終了 | − | − | − | ||
| 8 | 29.56坪 | − | − | 募集終了 | − | − | − |


