高橋ビルの貸事務所・賃貸オフィス情報
高橋ビルの貸事務所・賃貸オフィス情報
高橋ビル
- エレベーター
- 個別空調
- 旧耐震基準
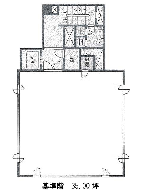
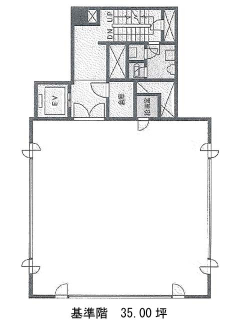
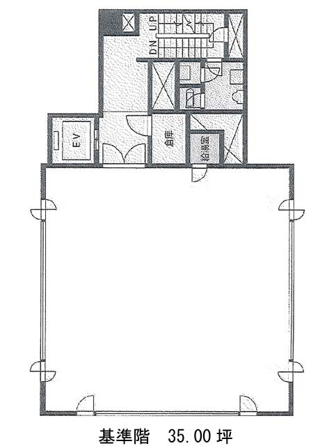
高橋ビルの空室フロアリスト
| 階数 | 面積 | 賃料+共益費 | 保証金 | 入居時期 | 更新料 | 償却費 | 礼金 | 検討 | 平面図 | 詳細 |
|---|---|---|---|---|---|---|---|---|---|---|
| 4 | 35.00坪 |
500,500円14,300円/坪
|
231万円
|
2026年1月上旬 | 新1ケ月 | 1ケ月 | なし |
高橋ビルの物件情報
高橋ビル(中央区八丁堀)は八丁堀駅徒歩1分、茅場町駅徒歩7分、宝町駅徒歩9分の賃貸オフィスです。
高橋ビルのアクセス
高橋ビルの募集終了区画
| 階数 | 面積 | 賃料+共益費 | 保証金 | 入居時期 | 更新料 | 償却費 | 礼金 | 平面図 | 詳細 |
|---|---|---|---|---|---|---|---|---|---|
| 5 | 35.00坪 | − | − | 募集終了 | − | − | − | ||
| 6 | 35.00坪 | − | − | 募集終了 | − | − | − | ||
| 7 | 35.00坪 | − | − | 募集終了 | − | − | − |


